





About This Property
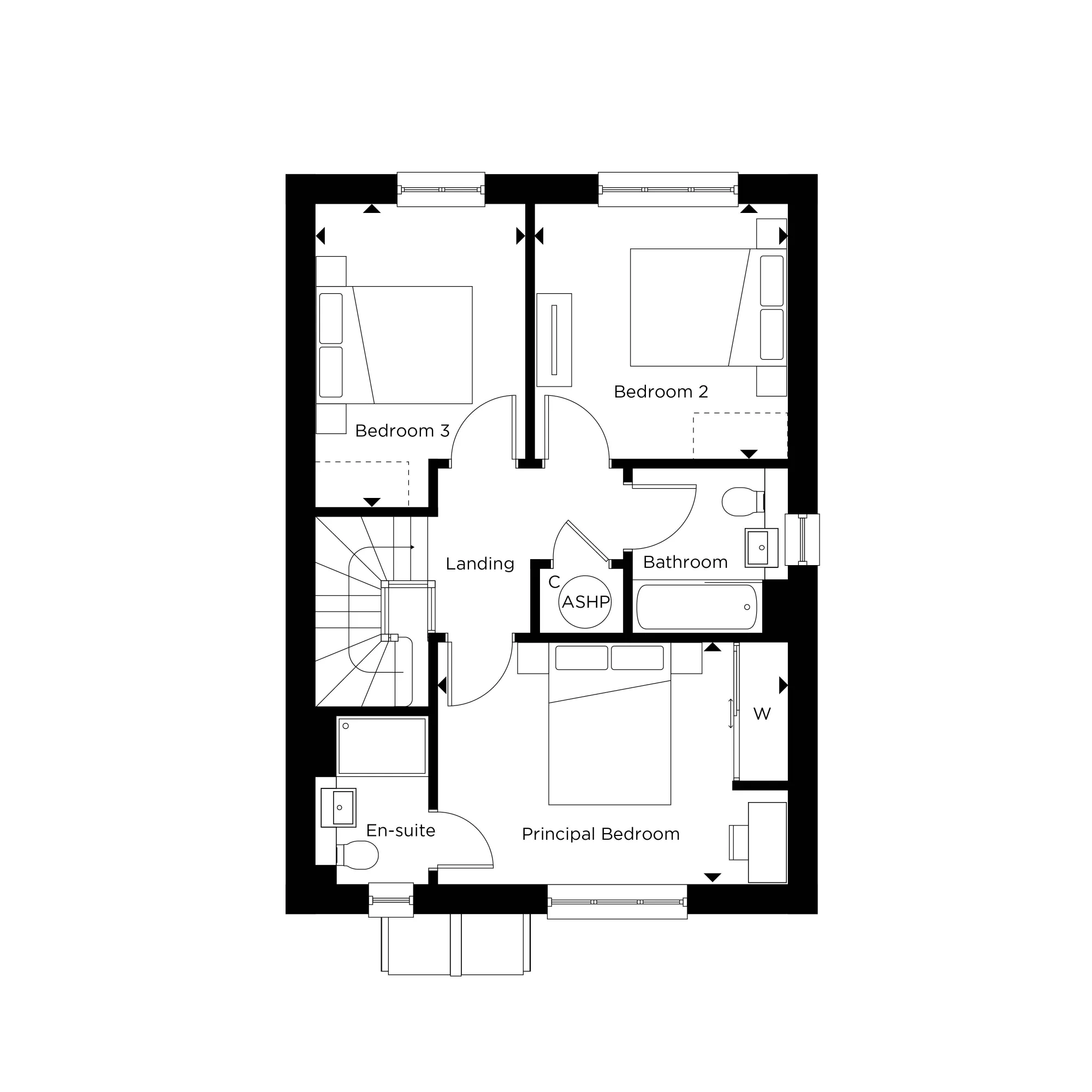
Discover what makes this home specialThe Willow, Number 39, is a charming detached family home situated in the sought-after CB3 1SE postcode area of Cambridge. Offering three well-proportioned bedrooms and two bathrooms, this property perfectly balances comfortable living with modern conveniences. The ground floor features a spacious open-plan living and dining area that seamlessly connects to a fitted kitchen, ideal for both entertaining and everyday family life. Upstairs, the principal bedroom benefits from an en-suite, while two additional bedrooms share a well-appointed family bathroom.
Set within a peaceful residential neighborhood, this home provides excellent access to Cambridge’s vibrant city center and key transport links, including Cambridge Station just a short drive away. The property is surrounded by a range of local amenities including reputable schools, parks, and shopping facilities, making it an ideal choice for families and professionals alike.
Property Features
This detached home boasts a spacious garden perfect for outdoor activities and relaxation. The fitted kitchen is designed with modern appliances and ample storage, complementing the open-plan living and dining area that creates a bright and welcoming space. The principal bedroom includes a private en-suite bathroom, enhancing comfort and privacy. Additional features include a convenient cloakroom on the ground floor, double glazing throughout for energy efficiency, and gas central heating ensuring warmth during colder months.
Local Amenities
Residents of The Willow benefit from proximity to excellent educational institutions such as St Matthew's Primary School and The Leys School, both highly regarded in the area. Shopping needs are well catered for with Tesco Express and Waitrose nearby, providing convenience for daily essentials. Outdoor enthusiasts will appreciate the close access to green spaces like Jesus Green and Midsummer Common, ideal for walking, cycling, and leisure. The local dining scene offers a variety of pubs and restaurants, including The Cambridge Blue and The Mill, perfect for socialising and enjoying local cuisine.
Estimate Calculator
Mortgage Calculator
Purchase Costs
Monthly Costs & Income
Mortgage Calculator
Purchase Costs
Monthly Costs
International Suitability
Good OpportunityInternational Buyer Calculator
Purchase Costs (Non-UK Resident)
Monthly Costs & Income
Key Considerations for International Buyers
Investment Analytics
Key metrics for investors & buyersProperty Value Projection
Based on 1.0% annual growthMonthly Rental Income
Based on 3.8% annual growthFloorplans
Ground Floor

Ground Floor
First Floor
Second FloorLocation
Commute Time Planner
Location Scores
Future Developments Nearby
Loading location insights...
Similar Properties
Latest Insights & Guides
Expert advice on buying new build homes, market trends, and property investment
New Build Solicitor Fees: What to Expect and How to Budget
Get a complete breakdown of new build conveyancing fees in the UK, from legal fees and disbursements to searches, Land R...
Read morePart Exchange for New Build Homes: How It Works
Learn how part exchange schemes work for new build homes in the UK. Understand the step-by-step process, eligibility cri...
Read moreMoving Costs Checklist for New Build Buyers
A comprehensive checklist of every moving cost new build buyers face in the UK — from removal companies and packing mate...
Read more

