
About This Property
Discover what makes this home specialBeauwood is a spacious and well-designed detached family home located in the semi-rural outskirts of Huddersfield, West Yorkshire. Offering four good-sized bedrooms and three bathrooms, including an en-suite, this property combines modern living with a tranquil setting. The ground floor boasts a large lounge, a versatile study/family room, and an open-plan kitchen and dining area with access to the garden, making it ideal for both entertaining and everyday family life.
Situated within the HD9 6PR postcode area, Beauwood benefits from proximity to Huddersfield town centre while enjoying a quieter residential environment. The property is well connected by road and public transport, with Huddersfield train station just a short drive away, providing easy access to major cities such as Leeds and Manchester. The surrounding area offers a range of local amenities including schools, parks, and shopping facilities, making it a practical and desirable location for families.
Property Features
This detached property offers versatile living spaces including a spacious lounge and a study/family room that can adapt to your needs. The open-plan kitchen and dining area is perfect for modern family living and entertaining. Upstairs, four bedrooms provide ample accommodation, with the principal bedroom featuring an en-suite bathroom. Additional amenities include a laundry room, garden, garage, and off-street parking, enhancing convenience and lifestyle quality.
Local Amenities
The property is located near several reputable educational institutions such as Huddersfield Grammar School and Longley Park Sixth Form College, catering to families with school-age children. Shopping needs are well served by nearby Tesco Superstore and local shops. For healthcare, Huddersfield Royal Infirmary is accessible within a short drive. Greenhead Park offers outdoor recreational opportunities, while a variety of pubs and restaurants provide dining options. Public transport connectivity is ensured by regular bus services and Huddersfield train station, facilitating easy travel to surrounding areas.
Estimate Calculator
Mortgage Calculator
Purchase Costs
Monthly Costs & Income
Mortgage Calculator
Purchase Costs
Monthly Costs
International Suitability
Moderate OpportunityInternational Buyer Calculator
Purchase Costs (Non-UK Resident)
Monthly Costs & Income
Key Considerations for International Buyers
Investment Analytics
Key metrics for investors & buyersProperty Value Projection
Based on 6.6% annual growthMonthly Rental Income
Based on 5.0% annual growthFloorplans
Ground Floor

Ground Floor
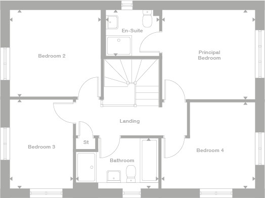
First FloorLocation
Commute Time Planner
Location Scores
Future Developments Nearby
Loading location insights...
Similar Properties
Explore More
Latest Insights & Guides
Expert advice on buying new build homes, market trends, and property investment
First Homes Scheme Explained: 30-50% Discount on New Build Homes — Eligibility, Application Process, Restrictions, and Whether It's Actually Worth It
Everything you need to know about the First Homes scheme: how the 30-50% discount works, eligibility criteria, income ca...
Read moreNew Build Windows and Doors Snagging Checklist
Windows and doors account for nearly a quarter of all new build snagging defects. Use this comprehensive checklist to in...
Read moreThe Complete Guide to Buying a New Build Home in the UK: Everything You Need to Know About Finding, Financing, and Purchasing a New Build Property
The ultimate guide to buying a new build home in the UK. Covers every aspect of the purchase — from searching and visiti...
Read more

