










About This Property
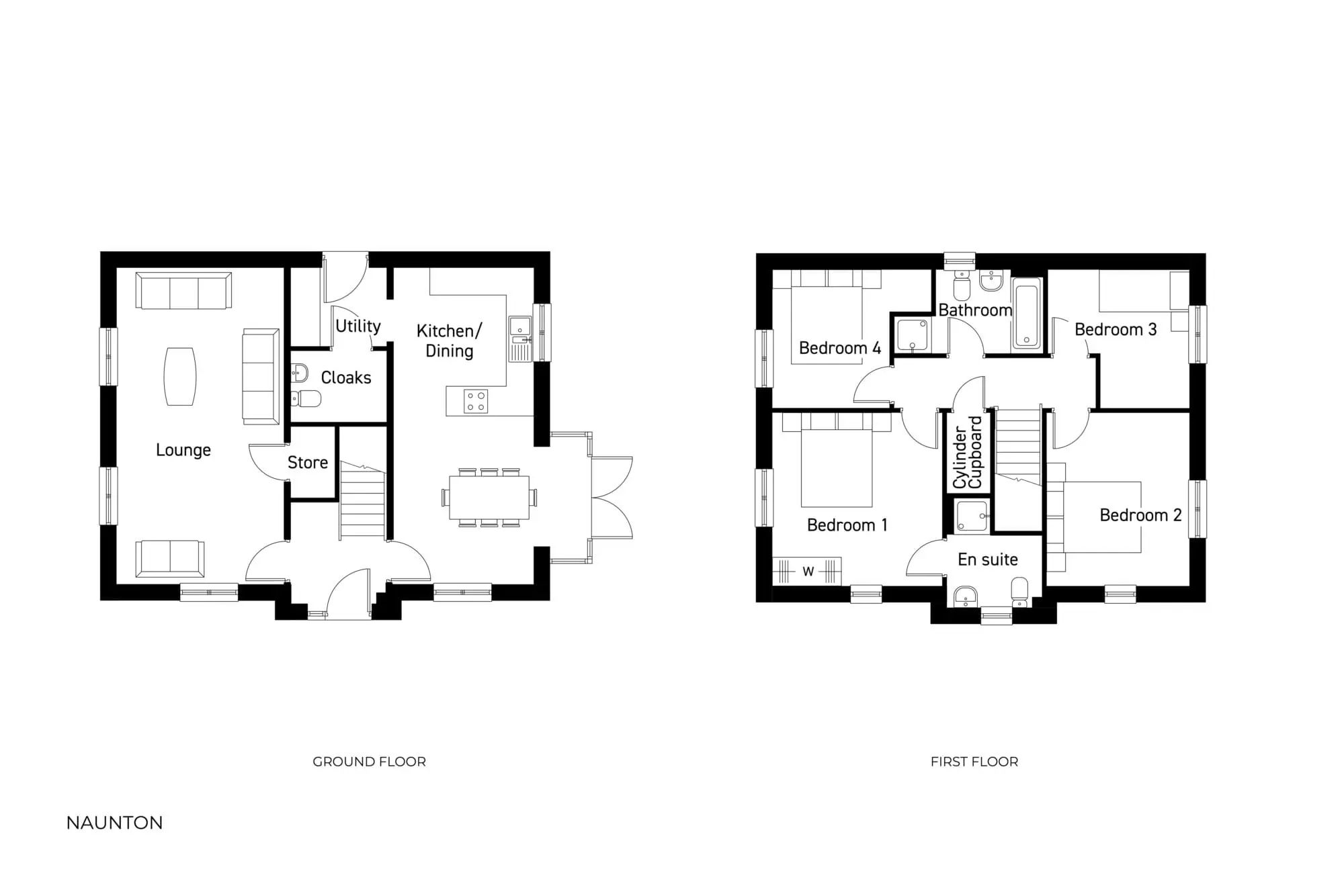
Discover what makes this home specialThe Naunton is a spacious and thoughtfully designed detached family home located in the desirable Dronfield area, near Sheffield. Boasting four well-proportioned bedrooms and three bathrooms, including a master en-suite, this property offers ample living space for growing families or those who enjoy hosting guests. The ground floor features a generous lounge, a modern kitchen/dining area with direct access to the rear garden, and practical utility and cloakroom spaces. The layout maximizes natural light and functionality, creating a warm and inviting atmosphere throughout.
Situated on a south-west facing plot, the rear garden benefits from good afternoon and evening sunlight, ideal for outdoor living and entertaining. The property is well positioned within a community that offers a blend of peaceful suburban living with convenient access to local amenities, schools, and transport links. With strong potential for future growth due to nearby regeneration projects, The Naunton represents an excellent opportunity for both homeowners and investors seeking a quality home in a well-connected location.
Property Features
This detached family home offers four bedrooms, including a master with en-suite, and three bathrooms in total. The spacious lounge and open-plan kitchen/dining area provide versatile living spaces, complemented by a utility room and cloakroom for added convenience. The south-west facing garden ensures good natural light in the afternoons and evenings, perfect for family relaxation or entertaining guests. Additional features include a store room and double glazing throughout for energy efficiency.
Local Amenities
The property is situated within close proximity to reputable schools such as Dronfield Primary School and Dronfield Henry Fanshawe School, making it ideal for families. Local amenities include Sainsbury's Local for everyday shopping, Dronfield Library for community resources, and several parks including Dronfield Park for outdoor activities. Dining options like The Blue Stoops Pub provide a welcoming social atmosphere. Transport links are well supported by Dronfield Train Station, offering regular services to Sheffield and beyond, enhancing connectivity for commuters and visitors alike.
Estimate Calculator
Mortgage Calculator
Purchase Costs
Monthly Costs & Income
Mortgage Calculator
Purchase Costs
Monthly Costs
International Suitability
Moderate OpportunityInternational Buyer Calculator
Purchase Costs (Non-UK Resident)
Monthly Costs & Income
Key Considerations for International Buyers
Investment Analytics
Key metrics for investors & buyersProperty Value Projection
Based on 3.0% annual growthMonthly Rental Income
Based on 5.0% annual growthFloorplan
Ground Floor

Site Plan
Location
Commute Time Planner
Sun Path & Natural LightAI generated - Estimated
Room-by-Room Light Analysis
Location Scores
Future Developments Nearby
Loading location insights...
Similar Properties
Explore More
Latest Insights & Guides
Expert advice on buying new build homes, market trends, and property investment
Post-Completion Snagging: Your Rights and Timelines
Your rights to have defects fixed in your new build home are protected by warranties, consumer codes, and law. This guid...
Read moreExterior Snagging Checklist for New Build Homes
A comprehensive guide to inspecting the exterior of your new build home, covering brickwork, render, roofline, guttering...
Read moreGarden Rooms and Outbuildings for New Build Properties
A comprehensive UK guide to garden rooms and outbuildings for new build homeowners. Covers planning permission rules, pe...
Read more
