










About This Property
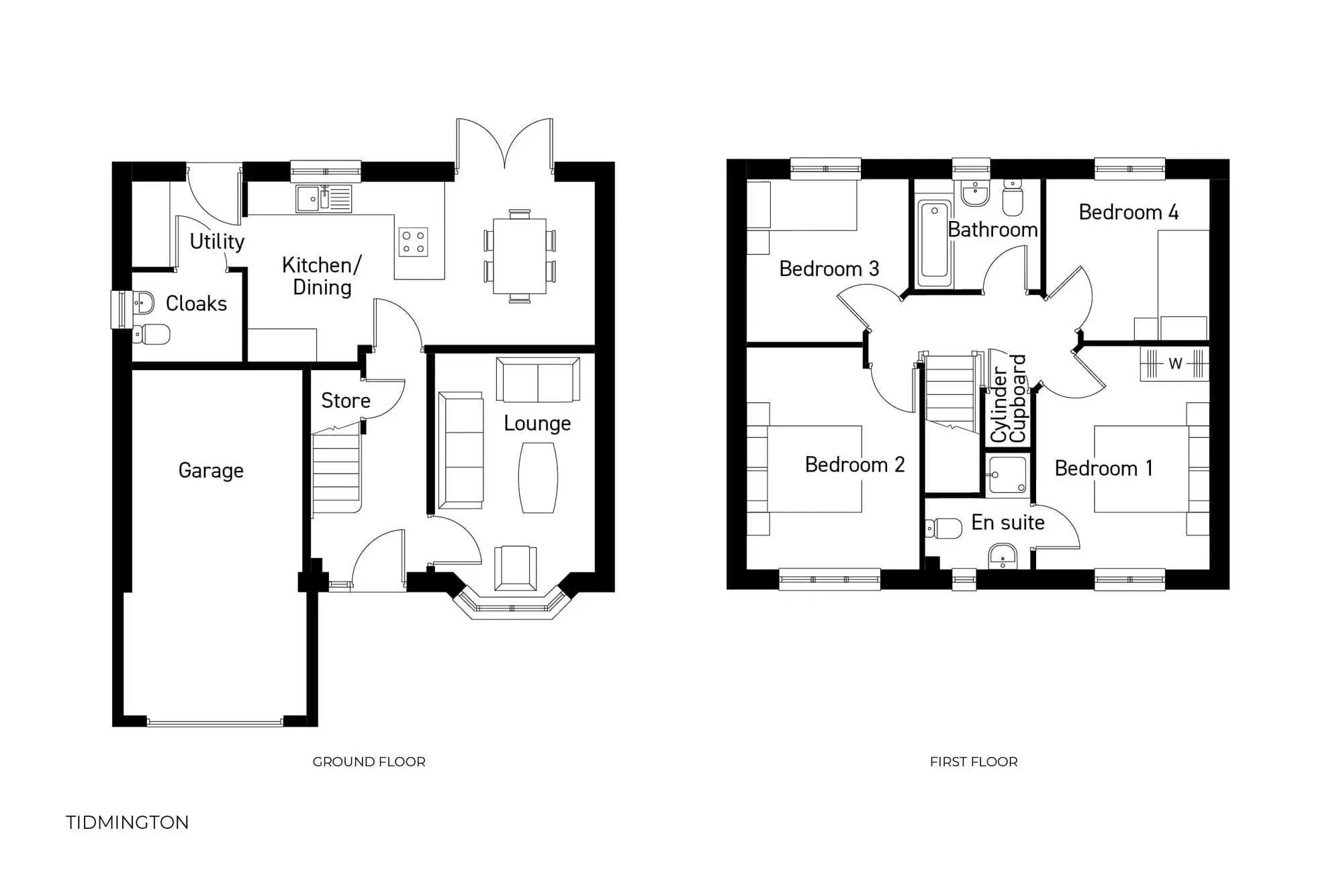
Discover what makes this home specialThe Tidmington is a spacious detached family home located in the BD19 4EA area near Keighley, West Yorkshire. Offering four well-proportioned bedrooms and three bathrooms, including a master en-suite, this property provides ample living space for modern family needs. The ground floor features a generous lounge with a bay window, a large kitchen/dining area with direct access to the rear garden, a utility room, cloakroom, and an integral garage, making it both practical and comfortable. The rear garden faces south-west, ensuring good sunlight exposure during the day.
Situated close to the market town of Keighley, the property benefits from a range of local amenities including reputable schools, parks, and shopping options. Transport links are convenient, with Keighley train station just 2.3 miles away offering direct services to Leeds and Bradford, making commuting straightforward. The area is experiencing steady growth with ongoing development projects improving infrastructure and community facilities, enhancing long-term value potential.
Property Features
The Tidmington boasts a thoughtfully designed layout with four bedrooms upstairs, including a master with an en-suite bathroom, and a family bathroom serving the other bedrooms. The ground floor offers a spacious lounge with a bay window that floods the room with natural light, and a large kitchen/dining area that opens onto the garden, perfect for family meals and entertaining. Additional practical features include a utility room, cloakroom, and integral garage providing secure parking and storage. The south-west facing garden ensures good sunlight hours, enhancing outdoor living.
Local Amenities
The property is well-positioned near Keighley town centre, offering a variety of local amenities. Educational needs are well catered for with Oakworth Primary School and Keighley Grammar School within easy reach. For shopping, Morrisons supermarket and several local shops provide convenience. Leisure and outdoor activities are supported by Cliffe Castle Park and Keighley Leisure Centre nearby. A selection of cafes and restaurants in the town centre add to the vibrant community atmosphere. The proximity to Keighley train station enhances connectivity to larger cities.
Estimate Calculator
Mortgage Calculator
Purchase Costs
Monthly Costs & Income
Mortgage Calculator
Purchase Costs
Monthly Costs
International Suitability
Moderate OpportunityInternational Buyer Calculator
Purchase Costs (Non-UK Resident)
Monthly Costs & Income
Key Considerations for International Buyers
Investment Analytics
Key metrics for investors & buyersProperty Value Projection
Based on 1.8% annual growthMonthly Rental Income
Based on 5.0% annual growthFloorplan
Ground Floor

Site Plan
Location
Commute Time Planner
Sun Path & Natural LightAI generated - Estimated
Room-by-Room Light Analysis
Location Scores
Future Developments Nearby
Loading location insights...
Similar Properties
Explore More
Latest Insights & Guides
Expert advice on buying new build homes, market trends, and property investment
How to Effectively Compare Mortgage Deals for New Builds
A detailed UK guide to comparing mortgage deals for new build homes, covering APRC, total cost of borrowing, fees vs rat...
Read moreHow to Get a Mortgage in Principle for a New Build Home
A mortgage in principle is essential before reserving a new build home. Learn what documents you need, how credit checks...
Read moreHow Shared Ownership Costs Work on New Build Homes
Understand the full costs of shared ownership on a new build home, including combined rent and mortgage payments, servic...
Read more

