














About This Property
Discover what makes this home specialThe Garvie is a spacious and elegantly designed detached family home located in the desirable West Lothian area, postcode OX2 8PQ. This five-bedroom, three-bathroom property offers a perfect blend of modern living and traditional charm, featuring a large open-plan kitchen/family/dining area that opens onto a south-facing garden, ensuring plenty of natural light throughout the day. The property also includes a generous lounge, utility room, and integral garage, providing ample space for family life and entertaining.
Upstairs, the master bedroom benefits from an en-suite bathroom and built-in wardrobes, while the additional bedrooms offer flexibility for family, guests, or a home office. The location is ideal for families and professionals alike, with excellent local amenities, schools, and transport links nearby. This home represents a fantastic opportunity to enjoy a high quality of life in a sought-after community within easy reach of Oxford city centre.
Property Features
This property boasts a south-facing garden that maximizes sunlight exposure, perfect for outdoor relaxation and entertaining. The integral garage and utility room add practical storage and convenience. The spacious open-plan kitchen/family/dining area is designed for modern living, seamlessly connecting indoor and outdoor spaces. Upstairs, the master bedroom and a second bedroom feature en-suite bathrooms, while built-in wardrobes provide excellent storage solutions throughout the home. Additional features include a cloakroom on the ground floor and a patio area accessible from the kitchen/family space.
Local Amenities
Located in West Lothian, OX2 8PQ, the property benefits from proximity to excellent educational institutions such as St. Joseph's Catholic Primary School and Oxford High School, both highly regarded in the area. Transport connections are strong, with Oxford Parkway Station providing direct rail links to London and surrounding areas, while Oxford City Centre is easily accessible for shopping, dining, and cultural activities. Local amenities include a large Tesco Superstore for everyday shopping needs, and Cutteslowe Park offers ample green space for outdoor activities. Additionally, the nearby John Radcliffe Hospital provides comprehensive healthcare services, making this location highly convenient for families and professionals alike.
Estimate Calculator
Mortgage Calculator
Purchase Costs
Monthly Costs & Income
Mortgage Calculator
Purchase Costs
Monthly Costs
International Suitability
Strong OpportunityInternational Buyer Calculator
Purchase Costs (Non-UK Resident)
Monthly Costs & Income
Key Considerations for International Buyers
Investment Analytics
Key metrics for investors & buyersProperty Value Projection
Based on 1.6% annual growthMonthly Rental Income
Based on 3.5% annual growthFloorplans
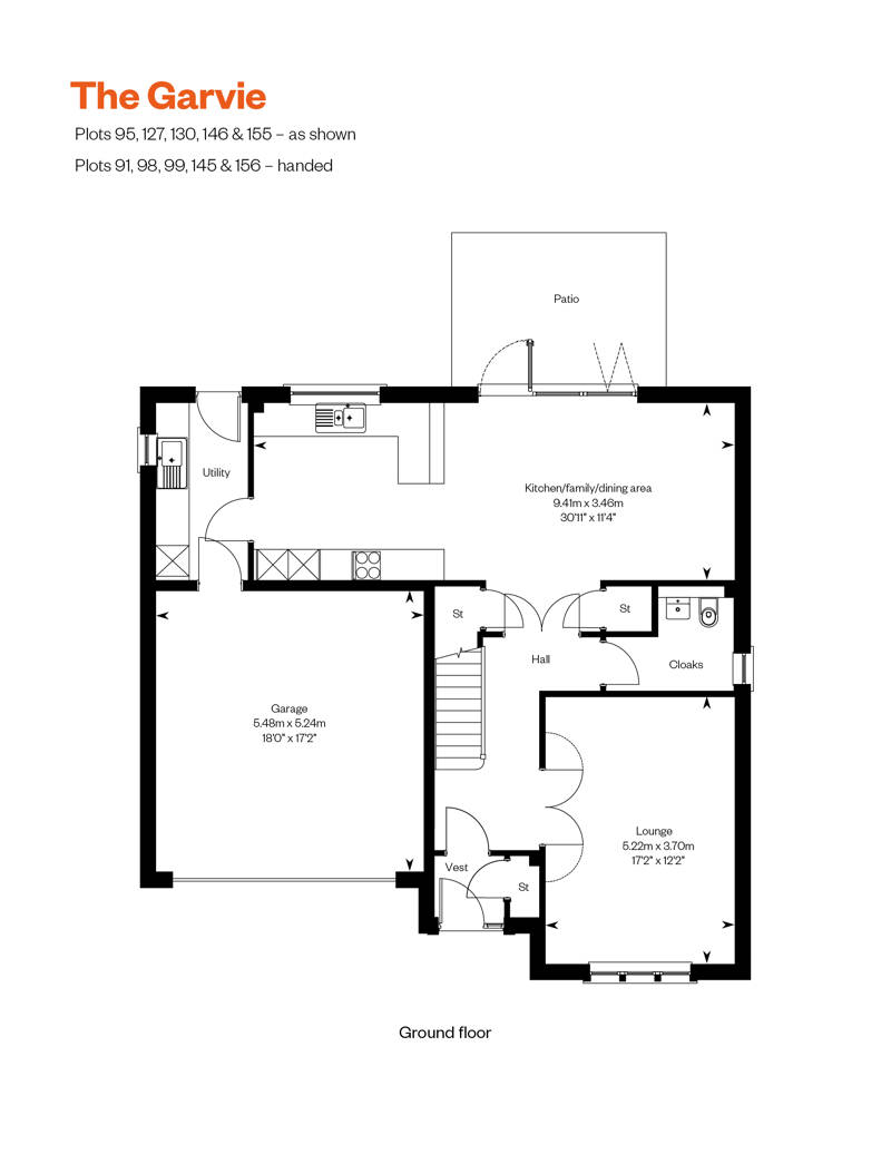
Ground Floor

Ground Floor
First FloorSite Plan
Location
Commute Time Planner
Sun Path & Natural LightAI generated - Estimated
Room-by-Room Light Analysis
Location Scores
Future Developments Nearby
Loading location insights...
Similar Properties
Explore More
Latest Insights & Guides
Expert advice on buying new build homes, market trends, and property investment
Buyer Sentiment and Confidence in the New Build Market
A comprehensive analysis of buyer sentiment and confidence in the UK new build housing market. Covers consumer confidenc...
Read moreStamp Duty on New Build Homes in 2026: Rates, Relief, and How to Pay Less
The complete stamp duty guide for new build buyers. Current SDLT rates, first-time buyer relief, the shared ownership el...
Read moreHow Interest Rates Affect New Build Home Prices, Mortgage Costs, and Developer Incentives
Comprehensive guide to how Bank of England interest rates affect new build prices, monthly mortgage payments, developer ...
Read more

