
About This Property
Discover what makes this home specialCherrywood is a spacious detached family home located in the suburban area of Coatbridge, North Lanarkshire. Offering four well-proportioned bedrooms and three bathrooms, including an en-suite and a separate cloakroom, this property is ideal for growing families seeking comfort and convenience. The ground floor features a large open-plan kitchen and dining/family area, perfect for entertaining, alongside a separate lounge that provides a cozy retreat. The integral garage and ample storage spaces add to the practicality of this home.
Situated within easy reach of Glasgow city centre, Cherrywood benefits from a quiet residential setting while maintaining excellent connectivity. The nearby Whifflet train station offers regular services into Glasgow, making commuting straightforward. Local amenities such as schools, parks, and supermarkets are accessible within a short drive, enhancing the appeal for families and professionals alike. With ongoing regeneration projects in Coatbridge, the area shows promising growth potential, making this property a sound investment for the future.
Property Features
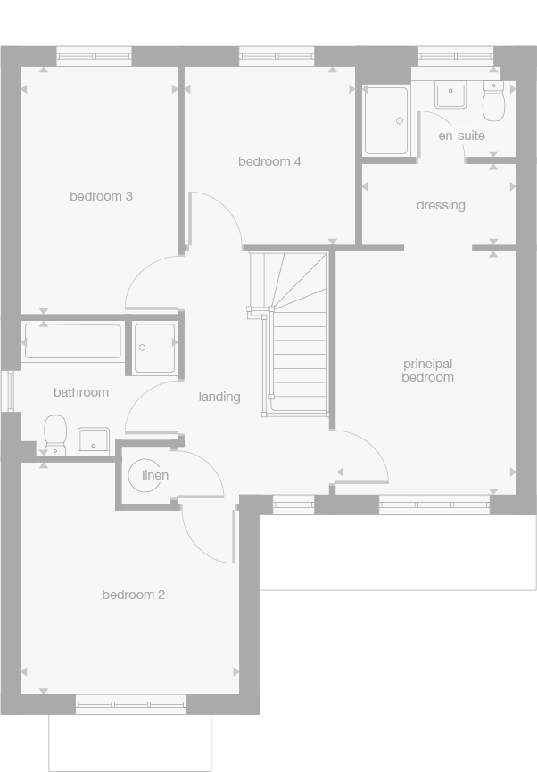
This detached home boasts four bedrooms, including a principal bedroom with an en-suite and dressing area, providing a luxurious private space. The three bathrooms ensure convenience for families and guests. The open-plan kitchen and dining/family room create a bright and welcoming environment for socialising and daily living. Additional features include an integral garage, laundry room, and multiple storage cupboards, all designed to enhance functionality and comfort.
Local Amenities
Cherrywood is well-positioned near essential amenities, including reputable schools such as St Ambrose High School and St Andrew's Primary School, making it ideal for families. Whifflet Train Station provides convenient rail links to Glasgow and beyond. Coatbridge town centre offers a variety of shops, supermarkets, and dining options. For outdoor enthusiasts, Drumpellier Country Park is nearby, offering extensive green space and recreational facilities. This blend of amenities supports a balanced lifestyle with ease of access to education, transport, shopping, and leisure.
Estimate Calculator
Mortgage Calculator
Purchase Costs
Monthly Costs & Income
Mortgage Calculator
Purchase Costs
Monthly Costs
International Suitability
Moderate OpportunityInternational Buyer Calculator
Purchase Costs (Non-UK Resident)
Monthly Costs & Income
Key Considerations for International Buyers
Investment Analytics
Key metrics for investors & buyersProperty Value Projection
Based on 5.4% annual growthMonthly Rental Income
Based on 2.8% annual growthFloorplans
Ground Floor

Ground Floor
First FloorLocation
Commute Time Planner
Location Scores
Future Developments Nearby
Loading location insights...
Similar Properties
Explore More
Latest Insights & Guides
Expert advice on buying new build homes, market trends, and property investment
New Build Kitchen Design: Layouts, Upgrades, and Making the Most of Your Space
Complete guide to designing and upgrading your new build kitchen in the UK. Covers standard specifications, developer up...
Read moreHow the Developer Snagging Rectification Process Works
Understanding how the developer snagging rectification process works gives you the knowledge to push for timely repairs....
Read moreNew Build Student Property Investment Guide
A comprehensive guide to investing in new build student accommodation across the UK. Covers university town analysis, yi...
Read more

