














About This Property
Discover what makes this home specialThe Iris, Number 114, is a stunning detached family home situated in the highly sought-after CB3 postcode area of Cambridge. Boasting four spacious bedrooms and three bathrooms, this property offers ample living space with a modern open-plan kitchen, dining and living area complemented by a separate family room and study. The design balances comfort and functionality, ideal for family living and entertaining.
Positioned within easy reach of Cambridge city centre, the property benefits from excellent transport links, local amenities, and a vibrant community atmosphere. The proximity to Cambridge Station and major road networks ensures convenient commuting options, while the surrounding green spaces and parks provide a peaceful environment. This home is perfect for buyers seeking quality living in a prime Cambridge location with strong future growth potential.
Property Features
This detached home offers four well-sized bedrooms including a principal bedroom with an en-suite and built-in wardrobes. The three bathrooms provide convenience for family living. The ground floor features a spacious open-plan kitchen, dining, and living area with large windows allowing natural light to flood the space. A separate family room and study provide versatile living options. Additional practical features include a utility room, WC, airing cupboard, and utility store. The porch adds a welcoming entrance to the home.
Local Amenities
Located in the CB3 area, this property benefits from access to excellent educational institutions such as The Perse School and Parkside Community College, making it ideal for families. Cambridge Station is just under 2 miles away, providing direct train services to London and other major cities. Local shopping needs are well catered for with Tesco and Waitrose supermarkets nearby. Cherry Hinton Hall Park offers green space and recreational facilities, while Cambridge Leisure Park provides entertainment options including cinemas and restaurants. The area is well-serviced by local cafes and eateries, enhancing the community feel.
Estimate Calculator
Mortgage Calculator
Purchase Costs
Monthly Costs & Income
Mortgage Calculator
Purchase Costs
Monthly Costs
International Suitability
Good OpportunityInternational Buyer Calculator
Purchase Costs (Non-UK Resident)
Monthly Costs & Income
Key Considerations for International Buyers
Investment Analytics
Key metrics for investors & buyersProperty Value Projection
Based on 1.0% annual growthMonthly Rental Income
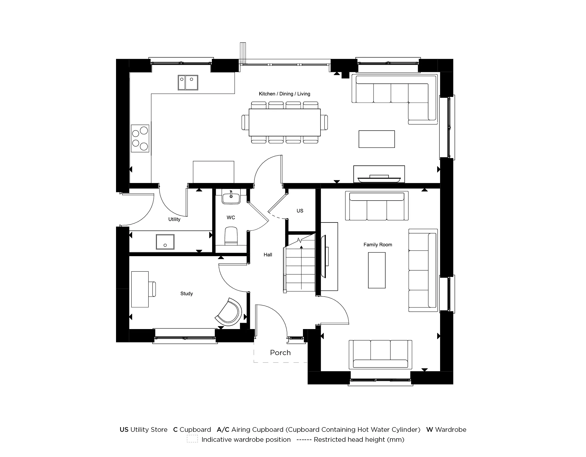
Based on 3.8% annual growthFloorplans
Ground Floor

Ground Floor
First Floor
Second FloorLocation
Commute Time Planner
Location Scores
Future Developments Nearby
Loading location insights...
Similar Properties
Latest Insights & Guides
Expert advice on buying new build homes, market trends, and property investment
Adverse Credit Mortgages for New Build Homes
A comprehensive UK guide to obtaining a mortgage for a new build home with adverse credit history, covering CCJs, defaul...
Read moreFirst-Time Buyer Activity in the New Build Market
A comprehensive analysis of first-time buyer activity in the UK new build housing market, covering FTB share of sales, g...
Read moreFirst-Time Buyer Jargon Buster: Every Term You Need to Know
A comprehensive A-to-Z guide to every term first-time buyers encounter when purchasing a new build home in the UK. Cover...
Read more

