













About This Property
Discover what makes this home specialEast Bridge apartment is a modern two-bedroom residence located in the heart of the N12 0DA area, offering a perfect blend of urban convenience and residential comfort. This well-designed apartment features an open-plan kitchen, living, and dining area that opens onto a balcony, providing ample natural light and a pleasant outdoor space. With two spacious bedrooms and a well-appointed bathroom, this property is ideal for young professionals, small families, or investors seeking a quality home in a thriving London suburb.
Situated close to New Southgate station, the property offers excellent connectivity to central London and beyond, making commuting straightforward and efficient. The surrounding area boasts a variety of local amenities including schools, parks, shops, and restaurants, ensuring residents enjoy a balanced lifestyle. The ongoing Woodberry Grove regeneration promises to enhance the community further, adding value and future growth potential to this investment.
Property Features
This apartment benefits from a bright, open-plan kitchen and living space designed for modern living, with direct access to a balcony that extends the living area outdoors. Both bedrooms are generously sized, complemented by ample storage space throughout the property. The bathroom is contemporary and well-equipped, ensuring comfort and convenience.
Local Amenities
Residents will appreciate the proximity to New Southgate Station, providing easy rail access to central London. Nearby Brunswick Park offers green space for leisure and recreation. The area is supported by a range of local amenities including grocery stores, cafes, and reputable primary schools such as St. Paul's Church of England Primary School. The neighborhood combines suburban tranquility with urban convenience, making it appealing for families and commuters alike.
Estimate Calculator
Mortgage Calculator
Purchase Costs
Monthly Costs & Income
Mortgage Calculator
Purchase Costs
Monthly Costs
International Suitability
Moderate OpportunityInternational Buyer Calculator
Purchase Costs (Non-UK Resident)
Monthly Costs & Income
Key Considerations for International Buyers
Investment Analytics
Key metrics for investors & buyersProperty Value Projection
Based on 0.7% annual growthMonthly Rental Income
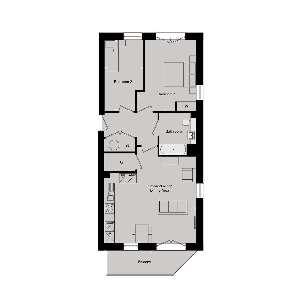
Based on 2.1% annual growthFloorplan
Floorplan

Site Plan

Location
Commute Time Planner
Sun Path & Natural LightAI generated - Estimated
Room-by-Room Light Analysis
Location Scores
Future Developments Nearby
Loading location insights...
Similar Properties
Explore More
Latest Insights & Guides
Expert advice on buying new build homes, market trends, and property investment
The Room-by-Room New Build Snagging Checklist: 150+ Items to Inspect Before You Settle In
A printable, room-by-room snagging checklist for new build homes. Over 150 items to inspect across every room — kitchen,...
Read moreElectrical Snagging Issues in New Build Properties
A comprehensive guide to electrical snagging defects in new build homes, covering socket placement, consumer unit labell...
Read moreWorking From Home in a New Build: Setting Up a Home Office
The complete guide to creating a productive, comfortable, and ergonomic home office in your new build, including furnitu...
Read more

