







About This Property
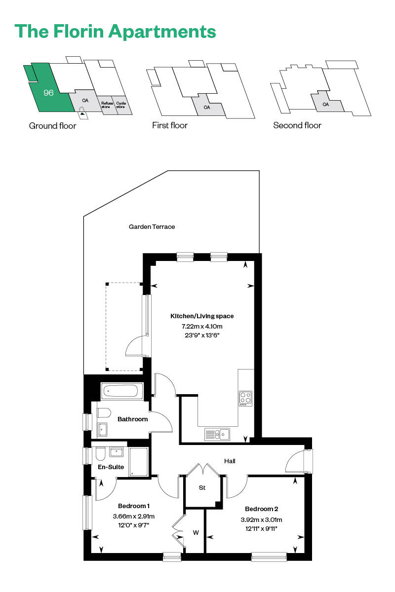
Discover what makes this home specialFlorin Apartments, located in the desirable Surrey area of Oxford, offers a modern ground floor 2-bedroom, 2-bathroom apartment ideal for professionals, small families, or investors. The spacious open-plan kitchen and living area extends onto a private garden terrace, perfect for indoor-outdoor living. With an en-suite bathroom in the master bedroom and a separate family bathroom, this apartment combines comfort and convenience in a thriving community setting.
Situated close to Oxford city centre, this property benefits from excellent transport links, including easy access to Oxford Station and major road networks. The local area boasts a variety of amenities including schools, parks, and shopping facilities, making it a well-rounded location for residents seeking a balanced urban lifestyle with green spaces nearby.
Property Features
This apartment features a generously sized open-plan kitchen and living space with direct access to a private garden terrace, providing a bright and airy environment. The master bedroom includes a modern en-suite bathroom, while a second bathroom serves the second bedroom and guests. Additional storage space is available within the hall, enhancing practicality. Double-glazed windows ensure energy efficiency and noise reduction, contributing to a comfortable living experience.
Local Amenities
The property is well-served by local amenities, with Oxford Station just a short drive away providing direct rail links to London and other major cities. Nearby schools such as Cherwell School and Oxford Spires Academy offer quality education options. Residents can enjoy green spaces including University Parks and Cutteslowe Park for leisure and recreation. Essential shopping needs are met by supermarkets like Waitrose and Sainsbury's, while healthcare facilities are conveniently accessible, ensuring a well-rounded community environment.
Estimate Calculator
Mortgage Calculator
Purchase Costs
Monthly Costs & Income
Mortgage Calculator
Purchase Costs
Monthly Costs
International Suitability
Good OpportunityInternational Buyer Calculator
Purchase Costs (Non-UK Resident)
Monthly Costs & Income
Key Considerations for International Buyers
Investment Analytics
Key metrics for investors & buyersProperty Value Projection
Based on 1.6% annual growthMonthly Rental Income
Based on 3.5% annual growthFloorplan
Ground Floor

Site Plan
Location
Commute Time Planner
Sun Path & Natural LightAI generated - Estimated
Room-by-Room Light Analysis
Location Scores
Future Developments Nearby
Loading location insights...
Similar Properties
Latest Insights & Guides
Expert advice on buying new build homes, market trends, and property investment
End-of-Quarter Deals on New Build Homes: How Developer Sales Targets Create Buying Opportunities and How to Negotiate the Best Price
Learn how developer quarterly sales targets create buying opportunities for new build homes. Discover negotiation script...
Read moreMortgage Protection Insurance for New Build Buyers
A comprehensive guide to mortgage protection insurance for UK new build buyers, covering life insurance, critical illnes...
Read moreHow to Finance Multiple New Build Investment Properties
A comprehensive guide to financing a portfolio of new build investment properties in the UK, covering portfolio landlord...
Read more

