
About This Property
Discover what makes this home specialLeawood Chapel Gardens is a charming detached family home located in the scenic and desirable area of Dumbarton, West Dunbartonshire. This spacious property offers four well-proportioned bedrooms, including a principal bedroom with an en-suite bathroom, making it ideal for families seeking comfort and privacy. The ground floor features a generous lounge, a modern kitchen/dining area with direct access to the garden, and practical utility spaces including a laundry room and a convenient WC. The integrated garage adds further value and convenience for parking or storage needs.
Situated in a peaceful residential development, this home benefits from proximity to essential amenities, excellent transport links, and green spaces, making it perfect for families and professionals alike. The property’s location offers easy access to Dumbarton town centre and Glasgow city, combining suburban tranquility with urban convenience. With its blend of functional living spaces and a sought-after location, Leawood Chapel Gardens presents a fantastic opportunity for buyers looking for a quality home in a growing area.
Property Features
This detached property boasts four bedrooms, including a spacious principal bedroom with an en-suite bathroom, providing privacy and comfort. The well-designed kitchen/dining area opens to the garden, ideal for family meals and entertaining. Additional practical features include a laundry room, downstairs WC, and an integrated garage, enhancing the home’s functionality. The lounge offers a bright and welcoming space for relaxation, while ample storage options throughout the house add to its convenience.
Local Amenities
Leawood Chapel Gardens is well-served by local amenities, including two nearby train stations—Dumbarton East and Dumbarton Central—providing frequent rail services to Glasgow and beyond. Educational facilities such as Dumbarton Academy and St. Patrick's Primary School are within easy reach, making it suitable for families with children. Residents benefit from nearby shopping options including a Tesco Superstore and various local shops. Recreational facilities like Dumbarton Leisure Centre and the picturesque Levengrove Park offer excellent opportunities for fitness and outdoor activities. A range of cafes and restaurants in the town centre provide diverse dining options.
Estimate Calculator
Mortgage Calculator
Purchase Costs
Monthly Costs & Income
Mortgage Calculator
Purchase Costs
Monthly Costs
International Suitability
Good OpportunityInternational Buyer Calculator
Purchase Costs (Non-UK Resident)
Monthly Costs & Income
Key Considerations for International Buyers
Investment Analytics
Key metrics for investors & buyersProperty Value Projection
Based on 5.4% annual growthMonthly Rental Income
Based on 2.8% annual growthFloorplans
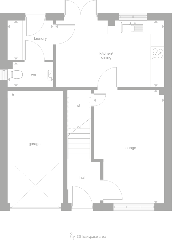
Ground Floor

Ground Floor
First FloorLocation
Commute Time Planner
Location Scores
Future Developments Nearby
Loading location insights...
Similar Properties
Explore More
Latest Insights & Guides
Expert advice on buying new build homes, market trends, and property investment
New Build Quality Improvements: Industry Progress in 2026
Explore the remarkable progress UK housebuilders have made in build quality, from declining defect rates and rising cust...
Read moreSustainability Trends in the New Build Housing Market
Explore how the Future Homes Standard, zero-carbon targets, green building materials, and rising EPC expectations are tr...
Read moreNew Build Specifications Guide: What's Included as Standard
Discover what comes as standard in UK new build homes, from kitchens and bathrooms to heating and electrics. Compare sta...
Read more
/003-bm_centurianvillage_leyand_ext_alderney_4bed_whitedoors_lowres.jpg)
