
About This Property
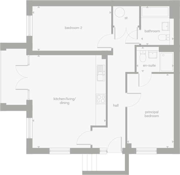
Discover what makes this home specialBeeches - Type 4 Apartment offers a modern and thoughtfully designed two-bedroom living space in the desirable Farnborough area. This apartment boasts a spacious open-plan kitchen, living, and dining area that benefits from natural light through multiple windows. The principal bedroom includes an en-suite bathroom, providing privacy and convenience, while a second bedroom and a separate bathroom complete the accommodation. Ideal for professionals, couples, or small families, this property combines comfort with accessibility.
Located within easy reach of Farnborough town centre and its amenities, the apartment benefits from excellent transport links including Farnborough (Main) train station, offering swift connections to London and surrounding areas. The surrounding neighborhood is peaceful yet well-connected, with local parks, schools, and shops nearby, making it a practical and attractive home or investment opportunity.
Property Features
The apartment's open-plan design maximizes space and light, creating a welcoming atmosphere for both relaxation and entertaining. The principal bedroom's en-suite adds a touch of luxury and convenience, while the second bedroom provides flexibility for guests or a home office. Additional storage is available via a dedicated cupboard, and modern double-glazed windows ensure energy efficiency and noise reduction.
Local Amenities
Residents benefit from proximity to key amenities such as Farnborough Main Station, facilitating easy commutes to London and beyond. Educational options include Cove Primary School and Kings International College, both highly regarded. Leisure and cultural facilities like Farnborough Leisure Centre and Princes Hall Theatre offer diverse activities. Local shops, parks, and a variety of restaurants and cafes provide convenience and lifestyle options within walking or short driving distance.
Estimate Calculator
Mortgage Calculator
Purchase Costs
Monthly Costs & Income
Mortgage Calculator
Purchase Costs
Monthly Costs
International Suitability
Moderate OpportunityInternational Buyer Calculator
Purchase Costs (Non-UK Resident)
Monthly Costs & Income
Key Considerations for International Buyers
Investment Analytics
Key metrics for investors & buyersProperty Value Projection
Based on 1.5% annual growthMonthly Rental Income
Based on 3.5% annual growthFloorplan
Ground Floor

Location
Commute Time Planner
Location Scores
Future Developments Nearby
Loading location insights...
Similar Properties
Explore More
Latest Insights & Guides
Expert advice on buying new build homes, market trends, and property investment
Developer Investment in Local Infrastructure and Amenities
Discover the scale of UK housebuilder contributions to local infrastructure through Section 106 agreements and the Commu...
Read moreNew Build Storage Solutions and Organisation Tips
Maximise storage in your new build home with clever organisation tips, space-saving solutions, and practical product rec...
Read moreNew Build Estate Management Companies: Your Rights
Understand your rights with new build estate management companies. Learn about service charges, Right to Manage, the Lea...
Read more

