










About This Property
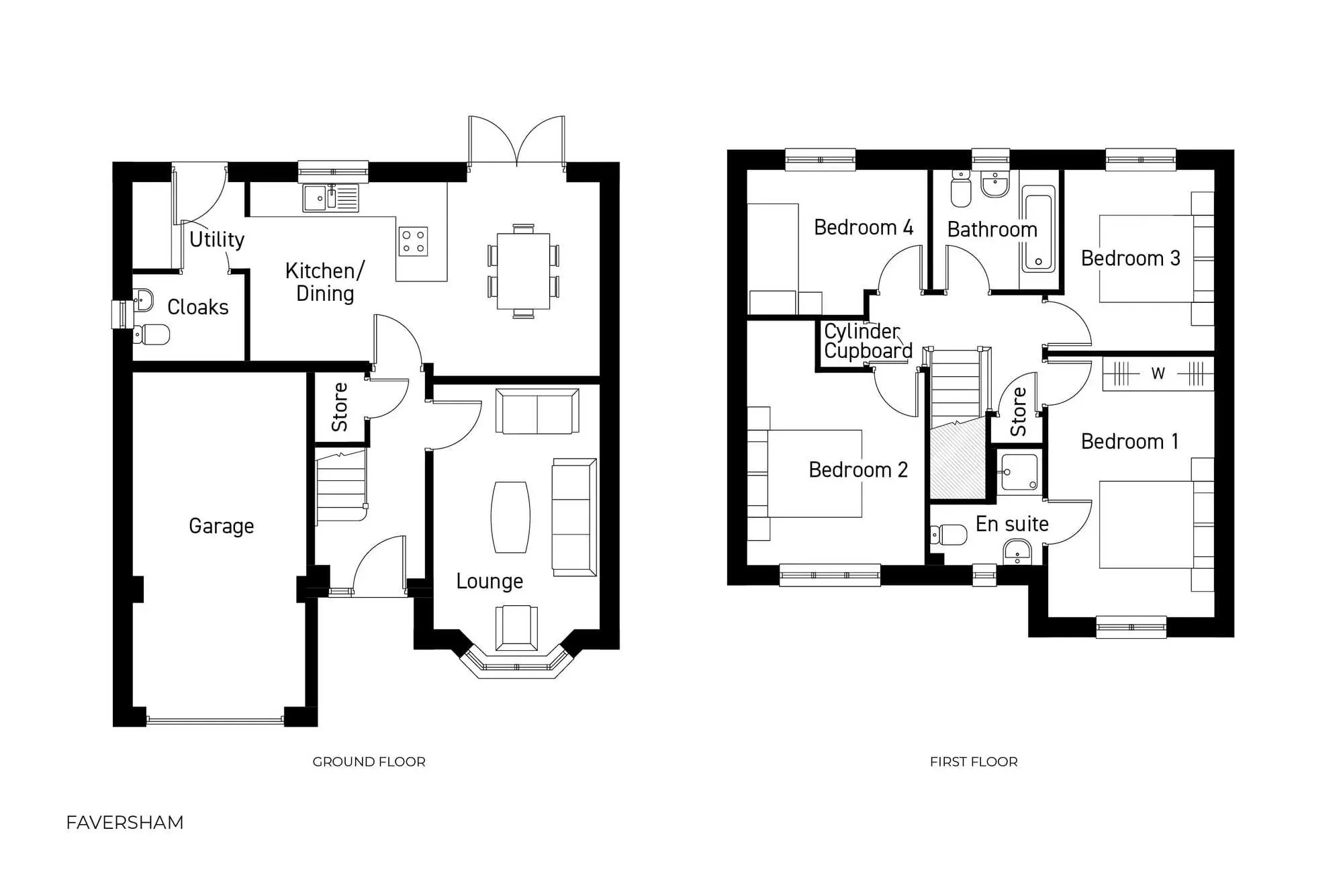
Discover what makes this home specialThe Faversham is a spacious and modern four-bedroom family home located in the desirable Dronfield area of Derbyshire, within the S21 1BD postcode. This beautifully designed house offers a perfect blend of comfort and functionality, featuring a large kitchen/dining area with utility and cloakroom, a generous lounge with bay window, and an integral garage. Upstairs, the property boasts four well-proportioned bedrooms including a master with en-suite, plus a family bathroom. The rear garden faces south-east, providing pleasant natural light throughout the day.
Situated just 1.5 miles from Dronfield train station, residents enjoy excellent connectivity to Sheffield city centre in around 20 minutes by train, making it ideal for commuters. The local area benefits from a range of amenities including good schools, parks, shops, and eateries, complemented by ongoing town centre regeneration projects that promise positive future growth. This property is well-suited for families seeking a balanced lifestyle with convenient access to urban centres and countryside.
Property Features
This property stands out with its integral garage providing secure parking and storage, alongside practical features such as a utility room and cloakroom on the ground floor. The spacious kitchen/dining area is perfect for family meals and entertaining, while the bay window lounge offers a bright, welcoming living space. Upstairs, the master bedroom benefits from an en-suite bathroom, ensuring privacy and convenience. The south-east facing garden captures morning and early afternoon sunlight, ideal for outdoor relaxation.
Local Amenities
The property is located within easy reach of essential amenities including Dronfield Train Station, which offers frequent services to Sheffield and beyond. Families will appreciate proximity to well-regarded schools such as Dronfield Junior School and Dronfield Henry Fanshawe School. Shopping needs are met by Tesco and various local shops, while Dronfield Park provides green space for recreation. A selection of restaurants and a medical centre further enhance the convenience and quality of life in this established residential area.
Estimate Calculator
Mortgage Calculator
Purchase Costs
Monthly Costs & Income
Mortgage Calculator
Purchase Costs
Monthly Costs
International Suitability
Moderate OpportunityInternational Buyer Calculator
Purchase Costs (Non-UK Resident)
Monthly Costs & Income
Key Considerations for International Buyers
Investment Analytics
Key metrics for investors & buyersProperty Value Projection
Based on 3.0% annual growthMonthly Rental Income
Based on 5.0% annual growthFloorplan
Ground Floor

Site Plan
Location
Commute Time Planner
Sun Path & Natural LightAI generated - Estimated
Room-by-Room Light Analysis
Location Scores
Future Developments Nearby
Loading location insights...
Similar Properties
Explore More
Latest Insights & Guides
Expert advice on buying new build homes, market trends, and property investment
New Build Homes in Nottingham: Area Guide and Developments
Discover new build homes in Nottingham with our comprehensive area guide. Covering Lace Market, West Bridgford, Beeston,...
Read moreRent to Buy Schemes and New Build Properties
Rent to Buy offers a unique route to homeownership by letting you rent a new build at a subsidised rate while saving for...
Read moreChoosing the Right Solicitor for Your New Build: CQS Accreditation, Fee Structures Compared, Panel vs Independent, Questions to Ask Before Instructing, Red Flags, and How to Switch Mid-Transaction
A practical guide to choosing, vetting, and working with a solicitor for your new build purchase in the UK — CQS accredi...
Read more

