









About This Property
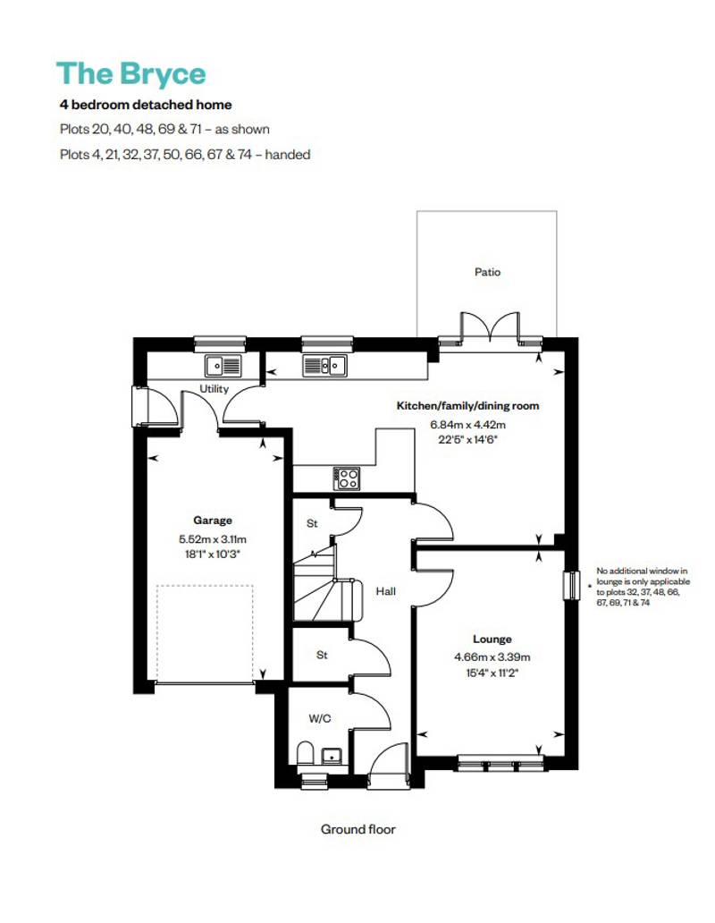
Discover what makes this home specialThe Bryce is a spacious 4-bedroom detached family home located in the sought-after area of Aberdeen, Oxford. This well-designed property offers a perfect blend of modern living and comfort, featuring a large kitchen/family/dining room that opens onto a private patio, ideal for entertaining or relaxing. The ground floor also includes a generous lounge and a convenient utility room adjacent to the garage. Upstairs, the home boasts four bedrooms, including two en-suite bathrooms and a family bathroom, providing ample space for a growing family or guests.
Property Features
This property stands out with its thoughtful layout, offering both privacy and communal space. The two en-suite bedrooms add a touch of luxury, while the sizeable kitchen/family/dining area is perfect for modern family life. The garage and utility room enhance practicality, and the patio garden provides a pleasant outdoor space. The home’s design maximizes natural light and functionality throughout.
Local Amenities
Situated in a well-connected and vibrant community, the property benefits from proximity to excellent educational institutions such as Oxford High School and Cherwell School. Oxford Brookes University is also nearby, making it ideal for families and professionals alike. The location offers convenient access to Oxford Station for swift travel to London, as well as local healthcare facilities like John Radcliffe Hospital. Residents enjoy a variety of shopping options, supermarkets, parks, and leisure amenities within easy reach.
Estimate Calculator
Mortgage Calculator
Purchase Costs
Monthly Costs & Income
Mortgage Calculator
Purchase Costs
Monthly Costs
International Suitability
Good OpportunityInternational Buyer Calculator
Purchase Costs (Non-UK Resident)
Monthly Costs & Income
Key Considerations for International Buyers
Investment Analytics
Key metrics for investors & buyersProperty Value Projection
Based on 1.6% annual growthMonthly Rental Income
Based on 3.5% annual growthFloorplan
Floorplans
Ground Floor

Ground Floor
First FloorSite Plan
Location
Commute Time Planner
Sun Path & Natural LightAI generated - Estimated
Room-by-Room Light Analysis
Location Scores
Future Developments Nearby
Loading location insights...
Similar Properties
Explore More
Latest Insights & Guides
Expert advice on buying new build homes, market trends, and property investment
Developer Upgrades Worth Choosing: Kitchen, Flooring, and Fixtures
A comprehensive UK guide to developer upgrades for new build homes, covering kitchens, flooring, bathrooms, electrical, ...
Read moreNew Build Sales Velocity and Market Confidence Trends
An in-depth analysis of UK new build sales rates per site, reservation-to-completion timelines, cancellation trends, buy...
Read moreGraduate and Young Professional Guide to Buying a New Build
A complete UK guide for graduates and young professionals buying a new build home. Covers salary-based borrowing power, ...
Read more

