










About This Property
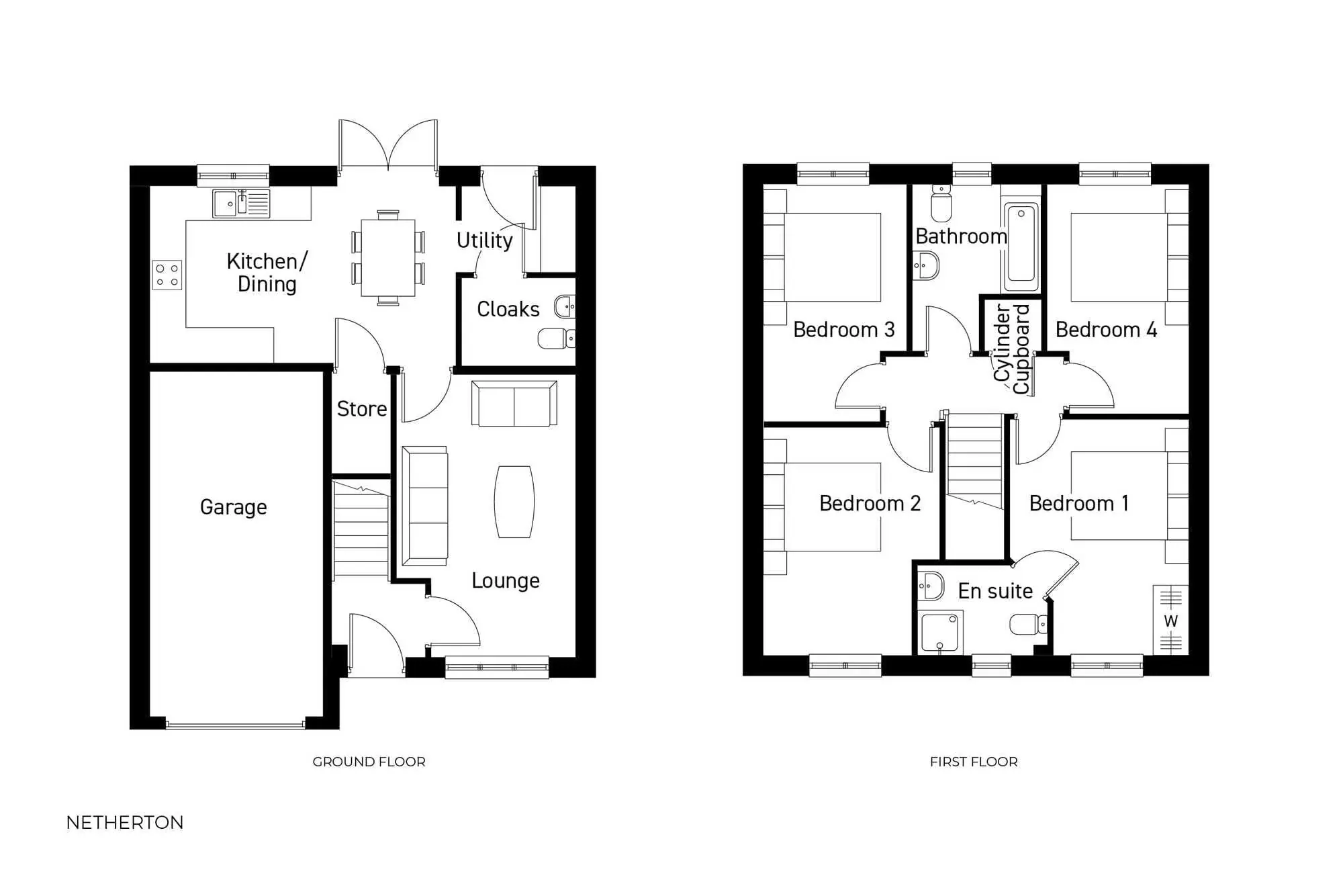
Discover what makes this home specialThe Netherton is a spacious detached family home located in the thriving suburb of Netherfield, Nottinghamshire. Offering four well-proportioned bedrooms and three bathrooms, this property combines modern living with practical design. The ground floor features a generous lounge, a contemporary kitchen/dining area with utility space, and a convenient cloakroom, while the first floor boasts a master bedroom with an en-suite and three additional bedrooms sharing a family bathroom. The attached garage and rear garden provide ample storage and outdoor space, ideal for family life.
Property Features
This detached home stands out with its well-thought-out layout, including a spacious lounge and a modern kitchen/dining area perfect for family meals and entertaining. The utility room adds convenience, while the attached garage offers secure parking and storage. Upstairs, the master bedroom benefits from an en-suite shower room, complemented by three further bedrooms and a family bathroom, making it ideal for growing families or guests.
Local Amenities
Situated within easy reach of key local amenities, The Netherton offers access to reputable schools such as Netherfield Primary and Carlton-le-Willows Academy. Shopping needs are well catered for with nearby supermarkets including Sainsbury's. Outdoor enthusiasts will appreciate the proximity to Netherfield Park, while a variety of dining options and community facilities such as the local library and bus stops enhance daily convenience and lifestyle.
Estimate Calculator
Mortgage Calculator
Purchase Costs
Monthly Costs & Income
Mortgage Calculator
Purchase Costs
Monthly Costs
International Suitability
Moderate OpportunityInternational Buyer Calculator
Purchase Costs (Non-UK Resident)
Monthly Costs & Income
Key Considerations for International Buyers
Investment Analytics
Key metrics for investors & buyersProperty Value Projection
Based on 6.5% annual growthMonthly Rental Income
Based on 4.8% annual growthFloorplan
Ground Floor

Site Plan
Location
Commute Time Planner
Sun Path & Natural LightAI generated - Estimated
Room-by-Room Light Analysis
Location Scores
Future Developments Nearby
Loading location insights...
Similar Properties
Explore More
Latest Insights & Guides
Expert advice on buying new build homes, market trends, and property investment
Choosing the Right Plot on a New Build Development
Learn how to choose the best plot on a new build development by evaluating garden orientation, noise levels, privacy, si...
Read morePart Exchange for New Build Homes: How It Works
Learn how part exchange schemes work for new build homes in the UK. Understand the step-by-step process, eligibility cri...
Read moreApprenticeships: Developers Supporting Local Communities
UK housebuilders are investing millions in apprenticeship programmes, training academies and skills partnerships that cr...
Read more
.jpg)
