











About This Property
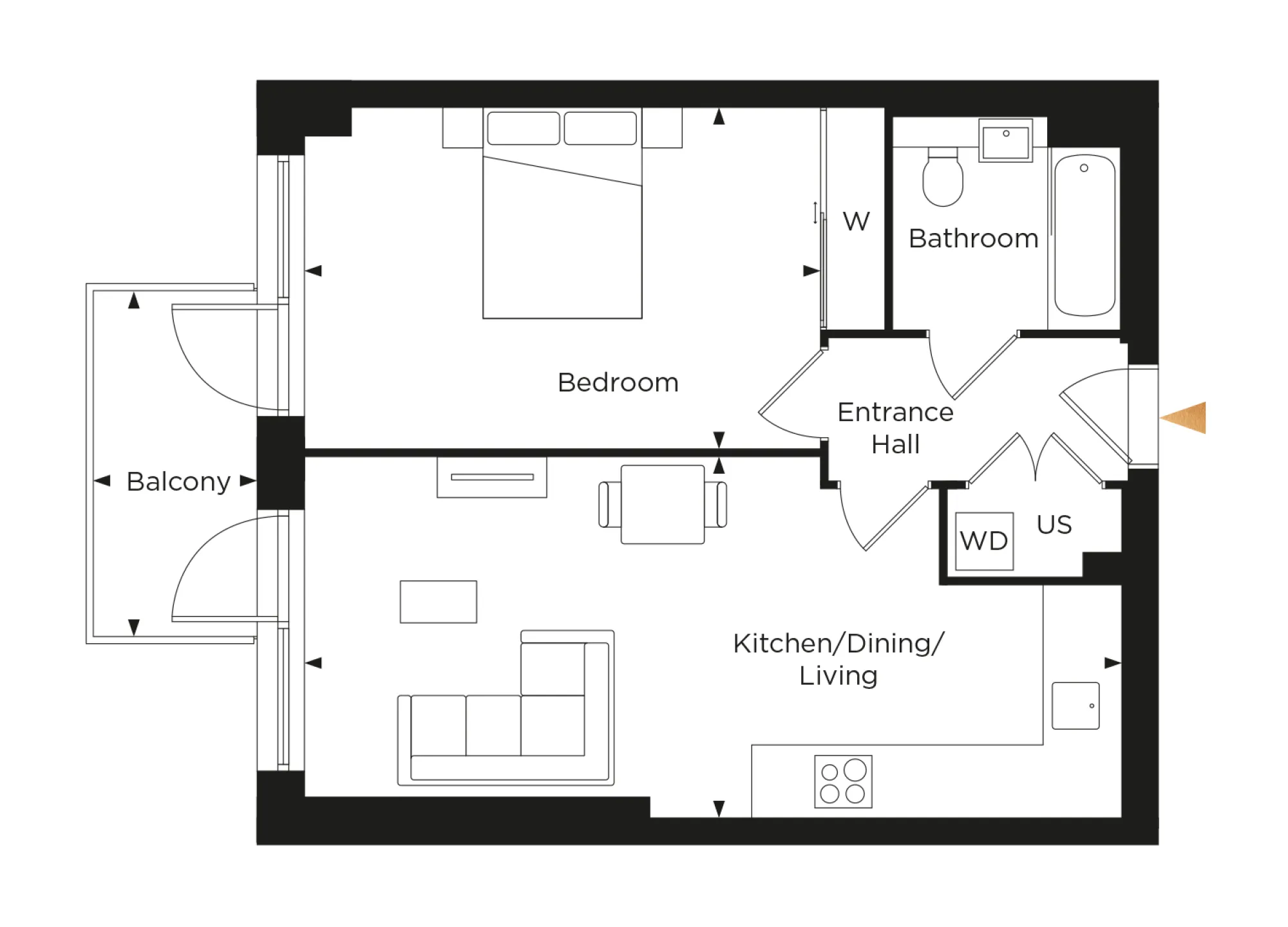
Discover what makes this home specialStarling House, Apartment 34, offers a modern and stylish one-bedroom living space in the heart of Cambridge. This well-designed apartment features an open-plan kitchen, dining, and living area that maximizes natural light and space efficiency. The generous bedroom includes built-in wardrobes, while the bathroom is conveniently located off the entrance hall. A private balcony extends the living area outdoors, perfect for relaxing or entertaining.
Situated in a vibrant and highly sought-after location, this apartment is ideal for professionals, students, or investors looking for a property with excellent connectivity and local amenities. The proximity to Cambridge Station ensures easy access to London and other major cities, while nearby parks, shops, and restaurants enhance the quality of life. The development benefits from ongoing local infrastructure improvements, promising strong future growth potential.
Property Features
This apartment boasts a contemporary open-plan layout combining kitchen, dining, and living areas, creating a spacious and inviting atmosphere. The balcony adds valuable outdoor space, while built-in wardrobes in the bedroom offer practical storage. Modern appliances including a washer/dryer unit enhance convenience. The secure entrance hall provides privacy and safety, making this an ideal urban home.
Local Amenities
Located within walking distance of Cambridge Station, residents enjoy excellent transport links. The nearby Cambridge Biomedical Campus provides employment opportunities and amenities. Green spaces such as Parkers Piece offer recreational options, while local shops including Tesco Express and popular dining options like The Mill pub cater to daily needs. Prestigious educational institutions such as St John's College are also close by, contributing to the area's vibrant atmosphere.
Estimate Calculator
Mortgage Calculator
Purchase Costs
Monthly Costs & Income
Mortgage Calculator
Purchase Costs
Monthly Costs
International Suitability
Strong Investment OpportunityInternational Buyer Calculator
Purchase Costs (Non-UK Resident)
Monthly Costs & Income
Key Considerations for International Buyers
Investment Analytics
Key metrics for investors & buyersProperty Value Projection
Based on 1.0% annual growthMonthly Rental Income
Based on 3.8% annual growthFloorplan
Ground Floor

Location
Commute Time Planner
Location Scores
Future Developments Nearby
Loading location insights...
Similar Properties
Explore More
Latest Insights & Guides
Expert advice on buying new build homes, market trends, and property investment
First Homes Scheme Explained: 30-50% Discount on New Build Homes — Eligibility, Application Process, Restrictions, and Whether It's Actually Worth It
Everything you need to know about the First Homes scheme: how the 30-50% discount works, eligibility criteria, income ca...
Read moreLocal Connection Criteria and New Build Scheme Eligibility
Local connection requirements determine who can access affordable new build homes through government schemes. Understand...
Read moreHow Shared Ownership Costs Work on New Build Homes
Understand the full costs of shared ownership on a new build home, including combined rent and mortgage payments, servic...
Read more
