










About This Property
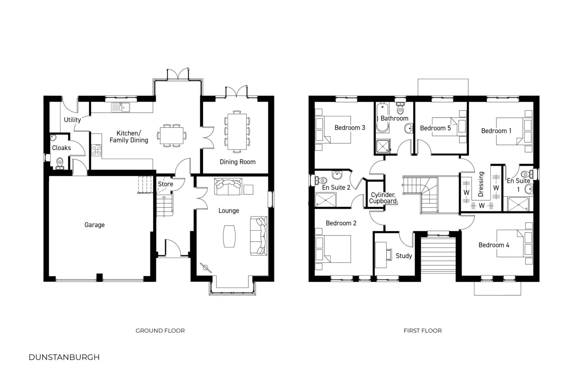
Discover what makes this home specialThe Dunstanburgh is an impressive five-bedroom detached family home located in a tranquil residential area of New Holland, North Lincolnshire. Offering spacious and versatile accommodation across two floors, this property combines traditional design with modern living. The ground floor features a generous lounge, formal dining room, a large kitchen/family dining area with utility and cloakroom, plus an integral double garage. Upstairs, the five bedrooms include two en-suite bathrooms and a separate family bathroom, alongside a study area, ideal for working from home.
Set on plot 180, the property benefits from a south-east facing rear garden that enjoys a pleasant amount of natural sunlight throughout the day. Its location provides a peaceful environment while maintaining reasonable access to local amenities, schools, and transport links. With a price of £530,000, The Dunstanburgh offers excellent value for families seeking a spacious, well-appointed home within reach of Hull and the wider Humber region.
Property Features
This property boasts five well-proportioned bedrooms, including two with en-suite bathrooms, perfect for family comfort and privacy. The inclusion of a dedicated study caters to modern home working needs. The ground floor living spaces are designed for both formal and informal occasions, with a separate dining room and a large kitchen/family dining area that opens onto the garden. Practical features such as a utility room, cloakroom, and integral double garage add convenience and functionality.
Local Amenities
The Dunstanburgh benefits from proximity to several local amenities including well-regarded primary and secondary schools like New Holland Primary School and South Humber Bank Academy. Daily essentials can be sourced from the village shop and post office, while leisure options include New Holland Park and the popular Jolly Sailor Pub. Although the area is largely residential and rural, it offers a quiet lifestyle with convenient access to necessary services.
Estimate Calculator
Mortgage Calculator
Purchase Costs
Monthly Costs & Income
Mortgage Calculator
Purchase Costs
Monthly Costs
International Suitability
Moderate OpportunityInternational Buyer Calculator
Purchase Costs (Non-UK Resident)
Monthly Costs & Income
Key Considerations for International Buyers
Investment Analytics
Key metrics for investors & buyersProperty Value Projection
Based on 4.8% annual growthMonthly Rental Income
Based on 4.8% annual growthFloorplan
Ground Floor

Site Plan
Location
Commute Time Planner
Sun Path & Natural LightAI generated - Estimated
Room-by-Room Light Analysis
Location Scores
Future Developments Nearby
Loading location insights...
Similar Properties
Explore More
Latest Insights & Guides
Expert advice on buying new build homes, market trends, and property investment
Show Home Style on a Budget: Recreating Developer Looks for Less
A comprehensive UK guide to recreating the polished, aspirational look of new build show homes without spending a fortun...
Read moreDriveway and Garage Snagging on New Build Homes
Your driveway and garage are often the last areas to be finished on a new build. Learn what to check for snagging issues...
Read moreSeasonal Maintenance Calendar for New Build Owners
A month-by-month maintenance calendar for new build homeowners covering heating, gutters, boilers, windows, gardens and ...
Read more

