
About This Property
Discover what makes this home specialKingford is a spacious and elegant detached family home located near Market Harborough in Leicestershire, offering a blend of traditional charm and modern living. Set on a generous plot, this five-bedroom property features four bathrooms, including en-suite facilities and a dressing room adjoining the principal bedroom, ensuring comfort and privacy for all occupants. The ground floor boasts a large open-plan kitchen with island, a formal dining room, a lounge, and flexible living spaces including a study/family room and utility area, ideal for contemporary family life.
Situated in a semi-rural setting with easy access to local amenities, Kingford provides a peaceful lifestyle while maintaining strong connectivity to nearby towns and cities. The property is well-suited for families seeking a tranquil environment with good schooling options and green spaces nearby. Its proximity to Market Harborough station offers rail links to London and the East Midlands, making it an attractive choice for commuters and professionals.
Property Features
This detached home impresses with its five well-proportioned bedrooms and four bathrooms, including two en-suites and a dedicated dressing room in the principal suite. The open-plan kitchen is a standout feature, complete with a central island and ample space for family gatherings. Additional rooms such as the study/family room and laundry enhance functionality. Outdoor space includes a garden and parking facilities, ideal for family living and entertaining.
Local Amenities
The property benefits from close proximity to Market Harborough town centre, which offers a variety of shops, supermarkets, and dining options. Educational needs are well catered for with reputable schools such as The Welland Park Academy and Robert Smyth Academy nearby. For leisure, residents can enjoy Welland Park and the Harborough Leisure Centre, providing outdoor and indoor activities. Transport links via Market Harborough station connect residents to London and other major cities, supporting both daily commuting and leisure travel.
Estimate Calculator
Mortgage Calculator
Purchase Costs
Monthly Costs & Income
Mortgage Calculator
Purchase Costs
Monthly Costs
International Suitability
Moderate OpportunityInternational Buyer Calculator
Purchase Costs (Non-UK Resident)
Monthly Costs & Income
Key Considerations for International Buyers
Investment Analytics
Key metrics for investors & buyersProperty Value Projection
Based on 1.7% annual growthMonthly Rental Income
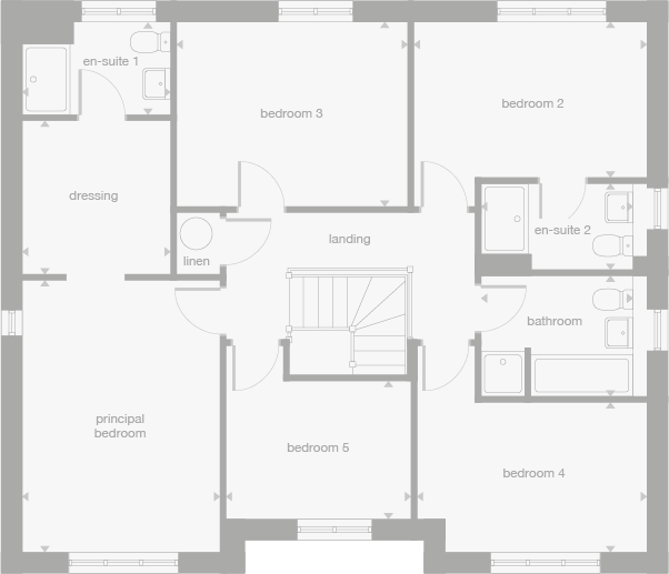
Based on 4.8% annual growthFloorplans
Ground Floor

Ground Floor
First FloorLocation
Commute Time Planner
Location Scores
Future Developments Nearby
Loading location insights...
Similar Properties
Explore More
Latest Insights & Guides
Expert advice on buying new build homes, market trends, and property investment
Utility Room Design: Making the Most of Your New Build's Hidden Space
A comprehensive UK guide to designing and organising your new build utility room. Covers layouts, laundry zones, sink op...
Read moreGreen Mortgages for Energy-Efficient New Build Homes: Complete Guide
Everything you need to know about green mortgages for new build homes in the UK. Compare lender deals from Barclays, Nat...
Read moreOff-Plan Property Investment in the UK: How to Evaluate Deals, Manage Risk, and Maximise Returns
Complete guide to off-plan property investment in the UK covering deal evaluation, risk management, due diligence checkl...
Read more

