
About This Property
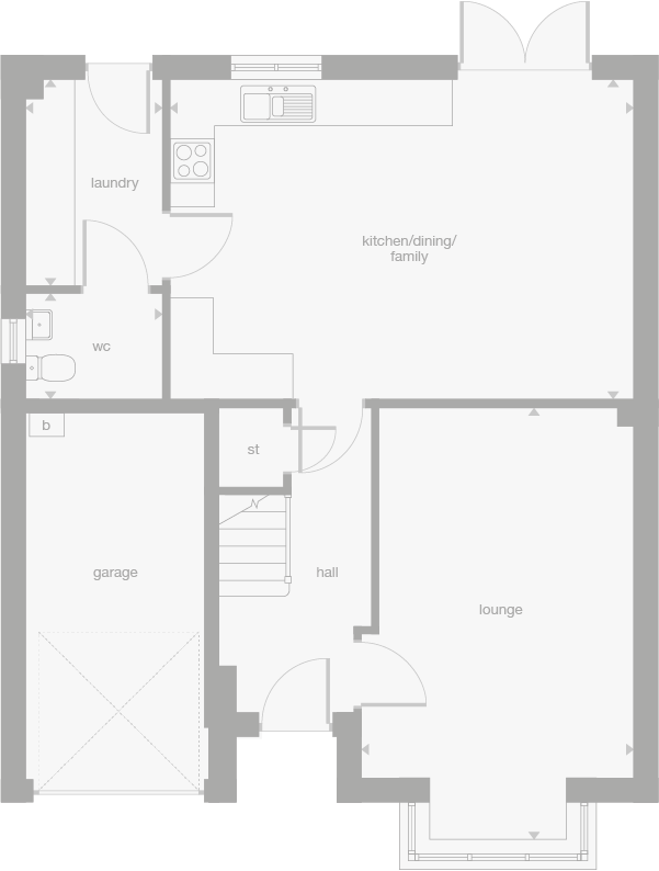
Discover what makes this home specialJackwood is a spacious detached family home located in the suburban area of Coatbridge, North Lanarkshire, within the G72 7XF postcode. This property offers a well-designed layout with four bedrooms and three bathrooms, ideal for growing families or those seeking ample living space. The ground floor boasts a large open-plan kitchen/dining/family area, a separate lounge, and practical utility spaces including a laundry room and garage. Upstairs, the principal bedroom benefits from an en-suite bathroom, complemented by three additional bedrooms and a family bathroom, providing comfort and convenience.
Situated just under two miles from Coatbridge Sunnyside railway station, Jackwood offers good connectivity to Glasgow city centre within 20 minutes by train, making it suitable for commuters. The local area benefits from a range of amenities including schools, parks, and shopping facilities, with ongoing regeneration projects enhancing the community and infrastructure. This property combines suburban tranquility with access to urban conveniences, making it an attractive option for families and professionals alike.
Property Features
Jackwood is designed to meet modern family needs with spacious and flexible living areas. The open-plan kitchen/dining/family room serves as the heart of the home, perfect for entertaining or family gatherings. The inclusion of two en-suite bathrooms adds privacy and luxury to the principal and second bedrooms. Practical features such as a utility/laundry room and an integrated garage enhance convenience. The property also benefits from double glazing and central heating, ensuring comfort and energy efficiency throughout the year.
Local Amenities
The property is well positioned near a variety of local amenities that cater to everyday needs and lifestyle activities. Families will appreciate the proximity to reputable schools such as St. Ambrose High School and Langloan Primary School. For shopping and leisure, Coatbridge Retail Park and Coatbridge Leisure Centre are easily accessible. Sunnyside Park offers green space for outdoor activities, while a range of local shops, supermarkets, and restaurants provide convenience and community atmosphere. The ongoing town centre regeneration promises further enhancements to the local amenities and services in the near future.
Estimate Calculator
Mortgage Calculator
Purchase Costs
Monthly Costs & Income
Mortgage Calculator
Purchase Costs
Monthly Costs
International Suitability
Moderate OpportunityInternational Buyer Calculator
Purchase Costs (Non-UK Resident)
Monthly Costs & Income
Key Considerations for International Buyers
Investment Analytics
Key metrics for investors & buyersProperty Value Projection
Based on 5.4% annual growthMonthly Rental Income
Based on 2.8% annual growthFloorplans
Ground Floor

Ground Floor
First FloorLocation
Commute Time Planner
Location Scores
Future Developments Nearby
Loading location insights...
Similar Properties
Explore More
Latest Insights & Guides
Expert advice on buying new build homes, market trends, and property investment
Are New Build Homes More Expensive? The True Cost of Buying and Owning a New Build Over 10 and 25 Years
New builds cost more upfront, but are they actually more expensive? This analysis breaks down the new build premium, cal...
Read moreBuying a New Build Apartment as Your First Home
A comprehensive guide to buying a new build apartment as a first-time buyer. Covers the pros and cons of apartment livin...
Read moreNew Build Investment Yields: Northern vs Southern England
A city-by-city comparison of new build investment yields across Northern and Southern England, analysing gross yields, c...
Read more

