










About This Property
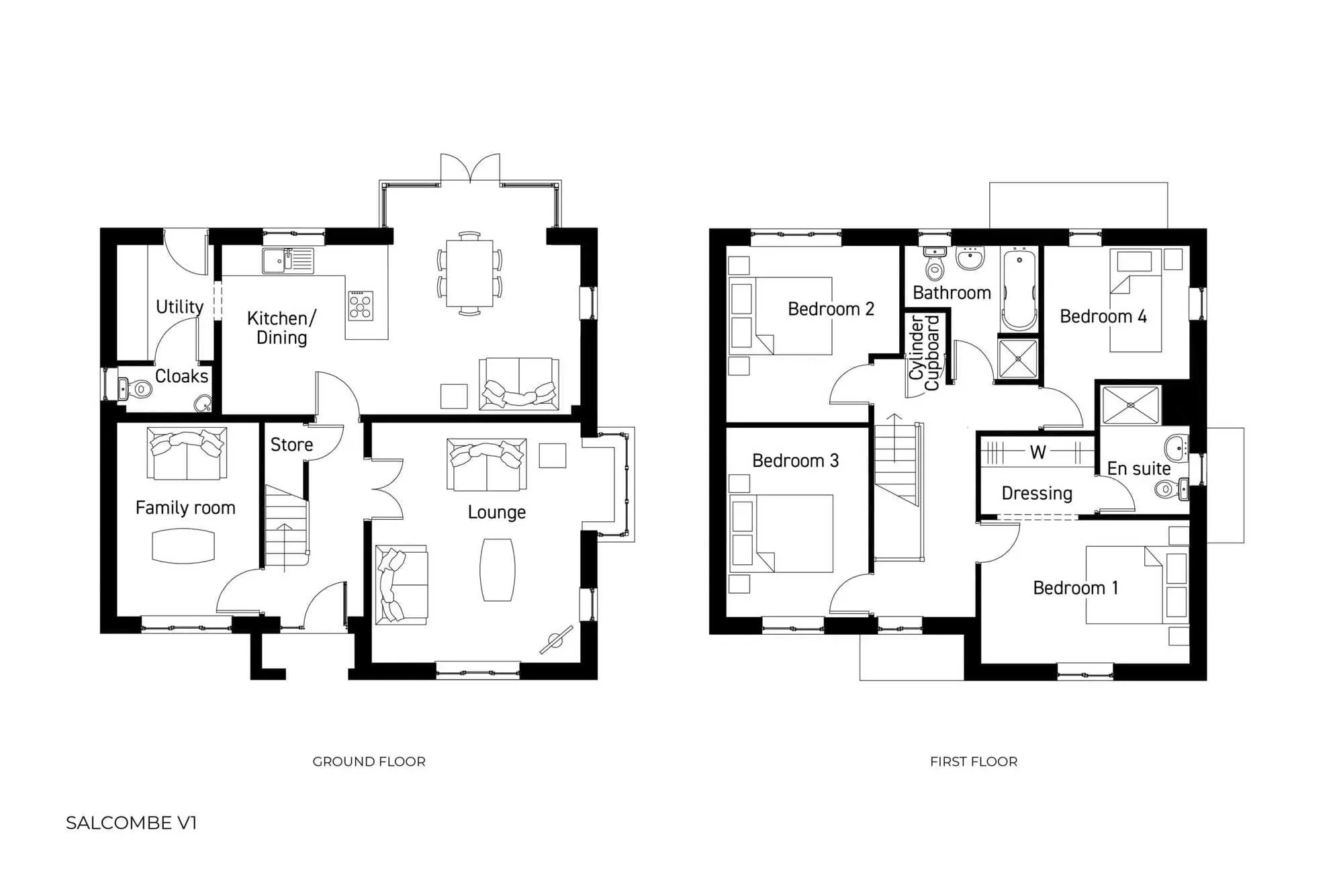
Discover what makes this home specialThe Salcombe is a spacious detached family home located in a desirable residential area near Huddersfield, West Yorkshire. Offering four well-proportioned bedrooms and three bathrooms, including an en-suite and a cloakroom, this property is designed for both comfort and functionality. The ground floor boasts a large lounge, a family room, and an open-plan kitchen/dining area that opens onto the rear garden, making it ideal for family living and entertaining. The utility room and store add practical storage solutions.
Situated within easy reach of Huddersfield town centre, the property benefits from excellent local amenities, schools, and transport links. The rear garden faces south-west, providing good sunlight throughout the afternoon and early evening. With a price point of £525,000, The Salcombe presents a compelling opportunity for families seeking a modern home in a well-connected and growing area.
Property Features
This detached home offers a versatile layout with four bedrooms upstairs, including a master with dressing area and en-suite. The ground floor includes a spacious lounge and a separate family room, perfect for multiple living spaces. The kitchen/dining area is open-plan and opens onto the garden, enhancing natural light and flow. Additional features include a utility room, cloakroom, and storage space, making this home both practical and comfortable.
Local Amenities
Located near Huddersfield, this property benefits from proximity to well-regarded schools such as Huddersfield Grammar School and Salendine Nook High School, making it ideal for families. Shopping needs are well catered for with Tesco and Asda supermarkets nearby. For leisure, Greenhead Park offers extensive green space. The Huddersfield train station is accessible within a short drive, providing good connectivity to Leeds, Manchester, and beyond. Local cafes and restaurants add to the community feel of the area.
Estimate Calculator
Mortgage Calculator
Purchase Costs
Monthly Costs & Income
Mortgage Calculator
Purchase Costs
Monthly Costs
International Suitability
Moderate OpportunityInternational Buyer Calculator
Purchase Costs (Non-UK Resident)
Monthly Costs & Income
Key Considerations for International Buyers
Investment Analytics
Key metrics for investors & buyersProperty Value Projection
Based on 6.6% annual growthMonthly Rental Income
Based on 5.0% annual growthFloorplan
Ground Floor

Site Plan
Location
Commute Time Planner
Sun Path & Natural LightAI generated - Estimated
Room-by-Room Light Analysis
Location Scores
Future Developments Nearby
Loading location insights...
Similar Properties
Explore More
Latest Insights & Guides
Expert advice on buying new build homes, market trends, and property investment
How to Maintain Your New Build Warranty Coverage
Protect your new build warranty with this complete UK guide. Covers NHBC Buildmark, LABC, Premier Guarantee warranties, ...
Read moreNew Build Property Portfolio Building: A Beginner's Guide
Learn how to build a profitable new build property portfolio from scratch. Covers financing strategies, growth projectio...
Read moreNew Build Apartment Market Trends and Buyer Preferences
A comprehensive analysis of the UK new build apartment market in 2026, covering flat versus house demand dynamics, city ...
Read more

