










About This Property
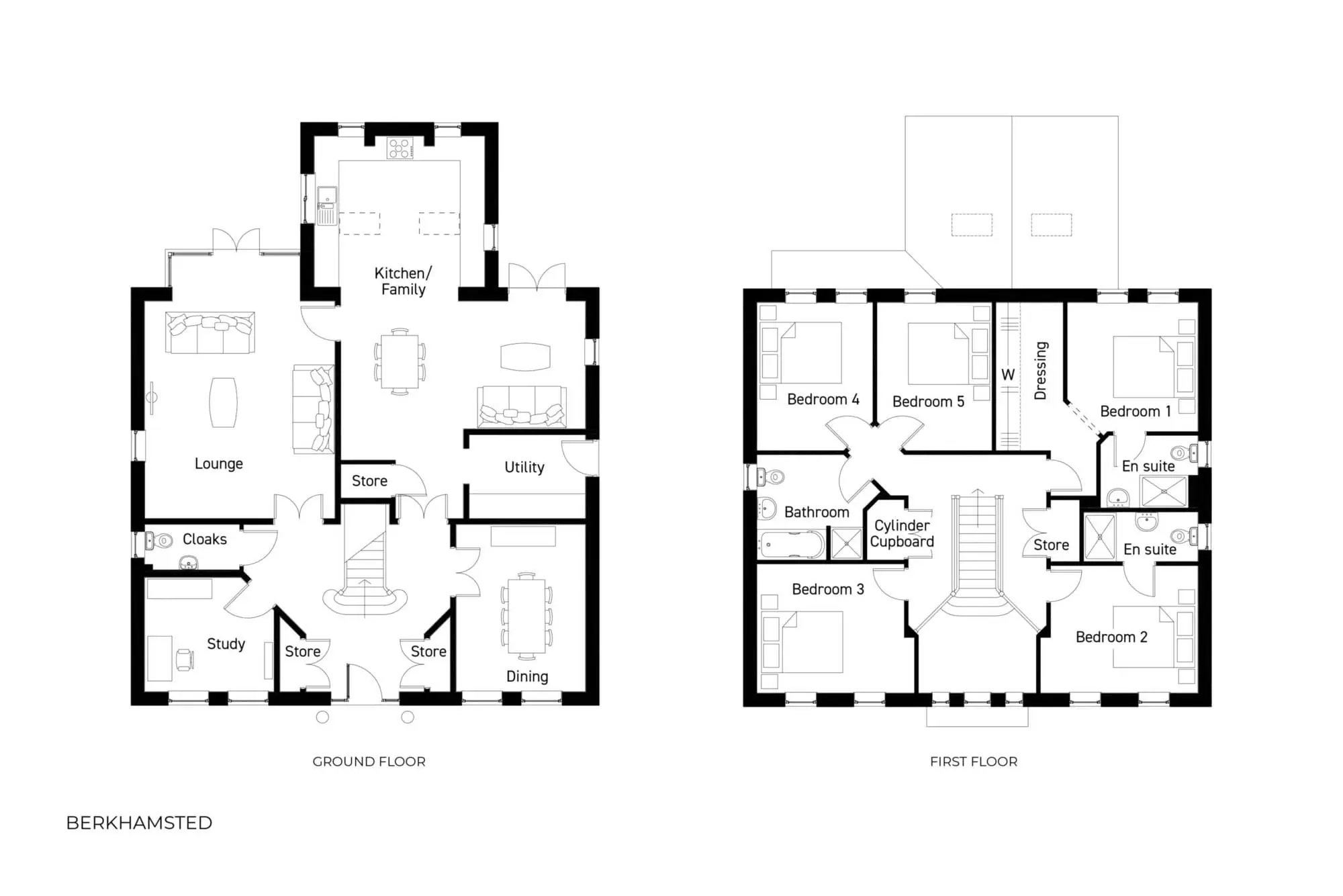
Discover what makes this home specialThe Berkhamsted is a spacious and elegant detached family home located in the HD2 2HR area near Huddersfield, West Yorkshire. This five-bedroom, five-bathroom property offers generous living spaces including a large kitchen/family room, lounge, dining room, study, and utility area. The design maximizes natural light and provides a well-thought-out flow between rooms, perfect for modern family living. The rear garden faces south-east, ensuring pleasant morning and early afternoon sunlight ideal for outdoor enjoyment.
Situated close to Huddersfield town centre, the property benefits from excellent transport links, including proximity to Huddersfield train station, which is approximately 2.5 miles away, providing direct routes to Leeds, Manchester, and Sheffield. Local amenities such as well-regarded schools, parks, supermarkets, and restaurants are all within easy reach, making this an attractive location for families and professionals alike.
Property Features
This property boasts a versatile and spacious layout with five well-proportioned bedrooms, including two with en-suite bathrooms and a dedicated dressing area in the master bedroom. The ground floor offers multiple living areas including a large kitchen/family room with ample space for dining and relaxation, a formal lounge, and a separate dining room. Additional features include a study, utility room, cloakroom, and several storage cupboards, enhancing functionality and convenience for family life.
Local Amenities
The property is well positioned near Huddersfield town centre, offering a variety of amenities including major supermarkets like Tesco and Asda for everyday shopping needs. Several reputable schools such as Salendine Nook High School and Moor End Academy are within a short drive, making it ideal for families. For leisure, Greenhead Park and Beaumont Park provide green spaces for outdoor activities. The presence of Huddersfield Royal Infirmary nearby ensures access to healthcare services, while a range of local restaurants and cafes contribute to a vibrant community atmosphere.
Estimate Calculator
Mortgage Calculator
Purchase Costs
Monthly Costs & Income
Mortgage Calculator
Purchase Costs
Monthly Costs
International Suitability
Moderate OpportunityInternational Buyer Calculator
Purchase Costs (Non-UK Resident)
Monthly Costs & Income
Key Considerations for International Buyers
Investment Analytics
Key metrics for investors & buyersProperty Value Projection
Based on 6.6% annual growthMonthly Rental Income
Based on 5.0% annual growthFloorplan
Ground Floor

Site Plan
Location
Commute Time Planner
Sun Path & Natural LightAI generated - Estimated
Room-by-Room Light Analysis
Location Scores
Future Developments Nearby
Loading location insights...
Similar Properties
Explore More
Latest Insights & Guides
Expert advice on buying new build homes, market trends, and property investment
The New Build Reservation: A First-Time Buyer’s Guide
Everything first-time buyers need to know about reserving a new build home — from the reservation fee and cooling-off pe...
Read moreHow UK Developers Are Embracing Sustainable Building Methods
From timber frame construction and heat pump installations to net zero carbon commitments, discover how Britain's leadin...
Read moreUK Housebuilder Output Report 2026
A comprehensive analysis of UK housebuilder output for 2026 — covering the top builders by completions, land bank strate...
Read more
