










About This Property
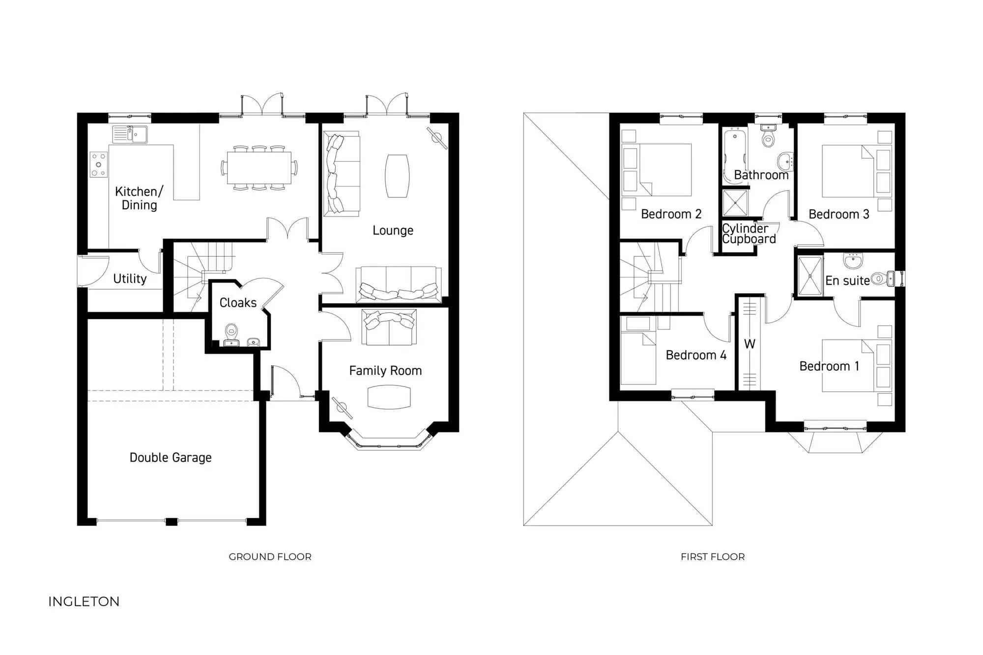
Discover what makes this home specialThe Ingleton is a spacious and well-designed four-bedroom family home located in the desirable HD2 2HR postcode area near Huddersfield. Offering a blend of traditional charm and modern convenience, this property features multiple living spaces including a lounge, family room, and a large kitchen/dining area with utility room. The double garage adds practical storage and parking options. Upstairs, the four bedrooms include a master with en-suite, supported by a family bathroom, providing ample accommodation for families or those needing extra space.
Situated within easy reach of Huddersfield town centre and well-connected to Leeds and Manchester, this home benefits from a quiet residential setting with good access to local amenities and schools. The south-east facing garden enjoys good sunlight throughout the day, making it an ideal outdoor space for relaxation and entertaining. This property is perfect for buyers seeking a comfortable family home with excellent transport links and future growth potential in the area.
Property Features
This property boasts a double garage and utility room, enhancing everyday convenience. The spacious kitchen/dining area is perfect for family meals and entertaining, while the separate lounge and family room provide versatile living spaces. The master bedroom includes a private en-suite, and additional bedrooms are served by a family bathroom. The south-east facing garden benefits from good sunlight, ideal for outdoor enjoyment.
Local Amenities
The property is located within a short drive of Huddersfield town centre, offering a wide range of shops, restaurants, and leisure facilities. Educational institutions such as Kirklees College and St. Patrick's Catholic Primary School are nearby, making it suitable for families. Greenhead Park provides ample green space for outdoor activities. Public transport connections and local amenities ensure a convenient lifestyle for residents.
Estimate Calculator
Mortgage Calculator
Purchase Costs
Monthly Costs & Income
Mortgage Calculator
Purchase Costs
Monthly Costs
International Suitability
Moderate OpportunityInternational Buyer Calculator
Purchase Costs (Non-UK Resident)
Monthly Costs & Income
Key Considerations for International Buyers
Investment Analytics
Key metrics for investors & buyersProperty Value Projection
Based on 6.6% annual growthMonthly Rental Income
Based on 5.0% annual growthFloorplan
Ground Floor

Site Plan
Location
Commute Time Planner
Sun Path & Natural LightAI generated - Estimated
Room-by-Room Light Analysis
Location Scores
Future Developments Nearby
Loading location insights...
Similar Properties
Explore More
Latest Insights & Guides
Expert advice on buying new build homes, market trends, and property investment
Landscaping and Garden Costs for New Build Properties
A comprehensive guide to landscaping and garden costs for UK new build homes. Covers turfing, patios, fencing, planting,...
Read moreThe Complete New Build Budget Planner: Every Cost from Deposit to Moving Day and Beyond
A comprehensive budget planner covering every cost of buying a new build home in the UK. Includes deposit requirements, ...
Read moreNew Build Home Security: Locks, Alarms, and Smart Systems
A comprehensive guide to securing your new build home with the latest locks, alarm systems, CCTV, smart security, and pr...
Read more

