
About This Property
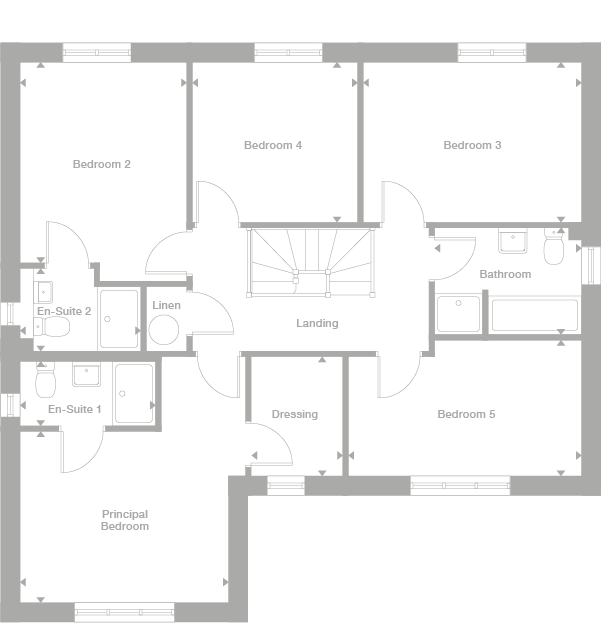
Discover what makes this home specialDenford is a spacious and well-designed detached family home located in the desirable WA8 5RY postcode area, situated near Lymm in Warrington. This property offers a versatile layout with five bedrooms and four bathrooms, including two en-suite facilities, catering perfectly to the needs of a growing family or those requiring additional space for guests or a home office. The ground floor features a large open-plan kitchen, dining, and family area, complemented by a separate lounge and utility spaces, providing both comfort and practicality.
Set within a peaceful residential area, Denford benefits from excellent connectivity to Warrington town centre and nearby major cities such as Manchester and Liverpool, making it ideal for commuters. The property also boasts a double garage and a good-sized garden, enhancing its appeal for families seeking both indoor and outdoor living space. With strong local amenities and ongoing regional development, this home represents a sound investment in a well-established community.
Property Features
Denford offers a blend of modern living and traditional comfort with its spacious open-plan kitchen, dining, and family area that encourages social interaction and entertaining. The inclusion of two en-suite bathrooms in the principal and second bedrooms adds convenience and privacy, while the separate lounge provides a quiet retreat. Practical features such as a utility room, cloakroom, and double garage enhance day-to-day living. The dressing room adjacent to the principal bedroom adds a touch of luxury and functionality.
Local Amenities
The property is located close to a range of local amenities, including well-regarded schools such as Lymm High School and Lymm Primary School, making it attractive for families. Residents benefit from easy access to Lymm village centre, which offers a variety of shops, supermarkets, and dining options including traditional pubs and restaurants. Outdoor enthusiasts will appreciate proximity to Lymm Dam Park, a popular spot for walking and recreation. Essential services such as Warrington Hospital are within reasonable driving distance, ensuring comprehensive local convenience.
Estimate Calculator
Mortgage Calculator
Purchase Costs
Monthly Costs & Income
Mortgage Calculator
Purchase Costs
Monthly Costs
International Suitability
Moderate OpportunityInternational Buyer Calculator
Purchase Costs (Non-UK Resident)
Monthly Costs & Income
Key Considerations for International Buyers
Investment Analytics
Key metrics for investors & buyersProperty Value Projection
Based on 1.4% annual growthMonthly Rental Income
Based on 5.2% annual growthFloorplans
Ground Floor

Ground Floor
First FloorLocation
Commute Time Planner
Location Scores
Future Developments Nearby
Loading location insights...
Similar Properties
Latest Insights & Guides
Expert advice on buying new build homes, market trends, and property investment
Shared Ownership vs First Homes vs Own New Rate: Which New Build Scheme Saves You Most?
Help to Buy has closed, but three major schemes still help you buy a new build in 2026. We compare Shared Ownership, Fir...
Read moreApprenticeships: Developers Supporting Local Communities
UK housebuilders are investing millions in apprenticeship programmes, training academies and skills partnerships that cr...
Read moreShould You Buy a New Build Home? Pros, Cons, and a Decision Guide for Every Type of Buyer
A comprehensive decision guide that goes beyond generic pros and cons. Discover whether a new build home is right for fi...
Read more

