















About This Property
Discover what makes this home specialThe Crichton is a spacious and elegant detached family home located in the desirable West Lothian area, offering a perfect blend of modern living and traditional charm. With five well-proportioned bedrooms and three bathrooms, including two en-suites, this property caters comfortably for larger families or those who require extra space for guests or a home office. The open-plan kitchen, family, and dining area provides a bright and airy social hub with direct access to a private patio and garden, ideal for entertaining or relaxing outdoors.
Situated on Plot 115, this home benefits from a south-west facing garden that enjoys ample afternoon and evening sunlight, enhancing the outdoor living experience. The property also includes a utility room, cloakroom, and an integral garage, adding to the convenience and practicality of the layout. Located in the OX2 8PQ postcode, it offers excellent access to local amenities, schools, and transport links, making it an attractive choice for families and professionals alike.
Property Features
This property boasts a well-designed layout with five bedrooms, including a master suite and a second en-suite bedroom, providing privacy and comfort. The open-plan kitchen, family, and dining area is the heart of the home, featuring modern fittings and direct garden access. Additional practical spaces include a utility room and cloakroom on the ground floor, plus an integral garage with internal access. The south-west facing garden ensures plenty of natural light and an inviting outdoor space for family activities or entertaining.
Local Amenities
Located in West Lothian within the OX2 8PQ area, the Crichton benefits from proximity to some of Oxford's most prestigious schools, including The Dragon School and Oxford High School, ideal for families prioritizing education. The nearby Oxford Parkway and Oxford Train Stations provide excellent transport links for commuters and travelers. Local shopping needs are well served by Tesco Superstore and the vibrant Summertown shopping district. For leisure, Cutteslowe Park offers green space and recreational facilities, while the University of Oxford adds cultural and academic vibrancy to the area.
Estimate Calculator
Mortgage Calculator
Purchase Costs
Monthly Costs & Income
Mortgage Calculator
Purchase Costs
Monthly Costs
International Suitability
Excellent OpportunityInternational Buyer Calculator
Purchase Costs (Non-UK Resident)
Monthly Costs & Income
Key Considerations for International Buyers
Investment Analytics
Key metrics for investors & buyersProperty Value Projection
Based on 1.6% annual growthMonthly Rental Income
Based on 3.5% annual growthFloorplans
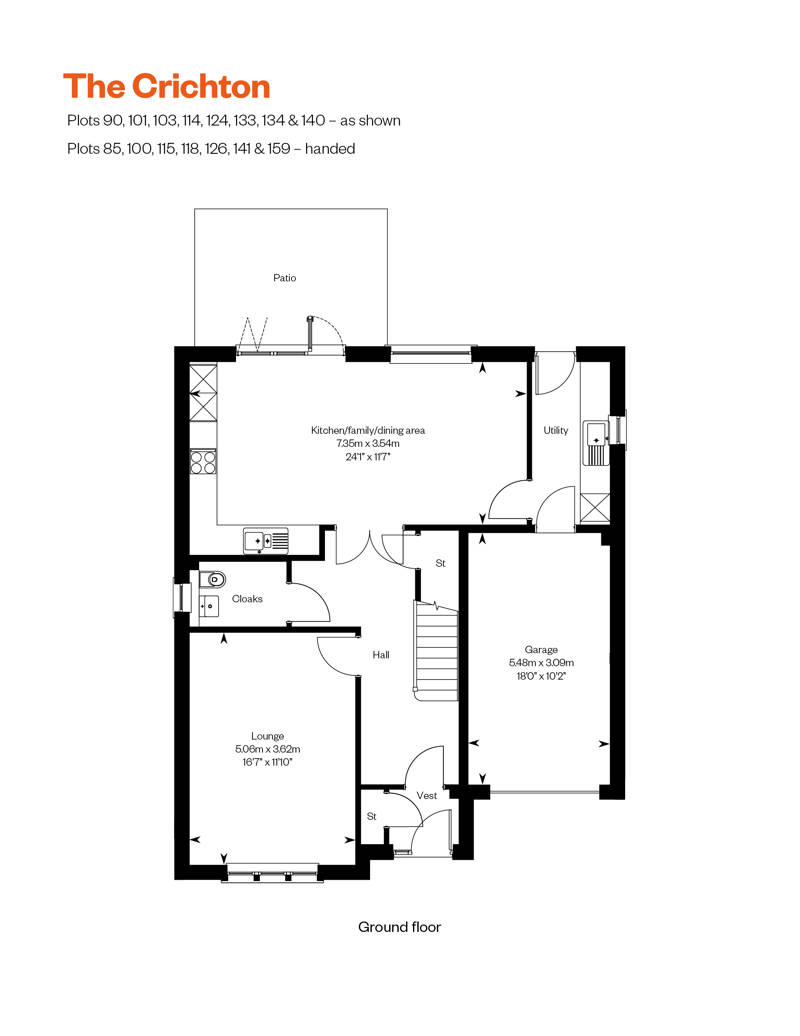
Ground Floor

Ground Floor
First FloorSite Plan
Location
Commute Time Planner
Sun Path & Natural LightAI generated - Estimated
Room-by-Room Light Analysis
Location Scores
Future Developments Nearby
Loading location insights...
Similar Properties
Explore More
Latest Insights & Guides
Expert advice on buying new build homes, market trends, and property investment
New Build Windows and Doors Snagging Checklist
Windows and doors account for nearly a quarter of all new build snagging defects. Use this comprehensive checklist to in...
Read moreUnderstanding CIL and Section 106 on New Build Developments
Comprehensive guide to the Community Infrastructure Levy and Section 106 planning obligations on new build developments ...
Read moreHosting and Entertaining in Your New Build Home
A complete guide to hosting dinner parties, family gatherings, and celebrations in your new build home, covering open-pl...
Read more
