













About This Property
Discover what makes this home specialThe Violet, Number 111 is a spacious detached four-bedroom family home located in a highly sought-after residential development in Cambridge. This property offers a well-designed layout with a modern open-plan kitchen/dining/living area that opens directly onto a south-west facing garden, ensuring excellent natural light throughout the day. The separate family room provides additional living space, ideal for relaxation or entertaining guests. Upstairs, the four bedrooms are complemented by a family bathroom and a versatile study, perfect for remote working or a quiet retreat.
Situated in the CB3 1SE postcode area, this home benefits from excellent connectivity to Cambridge city centre, just 3.5 miles away, accessible within 15 minutes by car or 25 minutes by bus. The nearby Cambridge North train station offers direct links to London King's Cross in approximately 50 minutes, making it an ideal location for commuters. The development is surrounded by green spaces including nearby parks and attenuation ponds, enhancing the tranquil setting. Local amenities such as reputable schools, supermarkets, and restaurants are all within easy reach, supporting a convenient and comfortable lifestyle.
Property Features
This detached home boasts a flexible and spacious floorplan with four bedrooms and two bathrooms, including a modern family bathroom. The open-plan kitchen/dining/living space is designed for contemporary living, featuring double doors that open onto a private south-west facing garden, ideal for afternoon and evening sun. Additional living space is provided by a separate family room, while a dedicated study offers a quiet workspace. Practical features include a utility store and ample parking. The property is finished to a high standard with energy-efficient double glazing throughout.
Local Amenities
The property is well positioned near Cambridge North Station, providing excellent rail connections to London and the East of England. Cambridge city centre, with its extensive shopping, dining, and cultural attractions, is just a short drive or bus ride away. Families will appreciate the proximity to highly regarded schools such as St John’s Primary School and Chesterton Community College. For outdoor leisure, Milton Country Park and Jesus Green offer ample green space and recreational opportunities. Local supermarkets including Tesco and Waitrose cater to daily shopping needs, while a variety of pubs and restaurants provide diverse dining options.
Estimate Calculator
Mortgage Calculator
Purchase Costs
Monthly Costs & Income
Mortgage Calculator
Purchase Costs
Monthly Costs
International Suitability
Attractive InvestmentInternational Buyer Calculator
Purchase Costs (Non-UK Resident)
Monthly Costs & Income
Key Considerations for International Buyers
Investment Analytics
Key metrics for investors & buyersProperty Value Projection
Based on 1.0% annual growthMonthly Rental Income
Based on 3.8% annual growthFloorplans
Ground Floor

Ground Floor
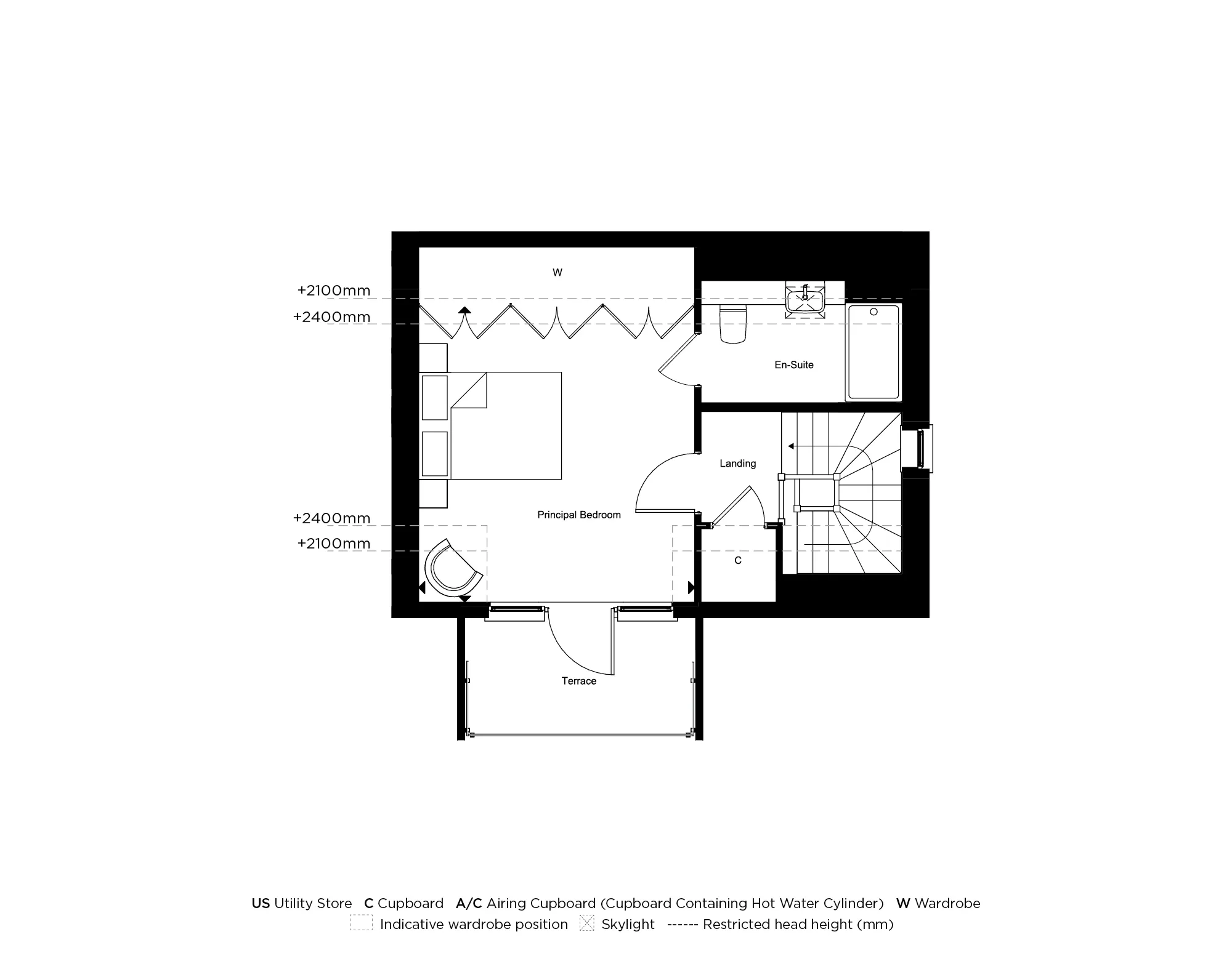
First Floor
Second FloorSite Plan

Location
Commute Time Planner
Sun Path & Natural LightAI generated - Estimated
Room-by-Room Light Analysis
Location Scores
Future Developments Nearby
Loading location insights...
Similar Properties
Latest Insights & Guides
Expert advice on buying new build homes, market trends, and property investment
New Build Prices in 2026: Regional Breakdown, Price Per Square Foot, and How to Tell If You're Paying Fair Value
Detailed 2026 analysis of UK new build prices by region and property type, price per square foot data, the new build pre...
Read moreInvestment Property Management Tips for New Build Landlords
Practical property management strategies for new build landlords, covering self-management vs letting agents, maintenanc...
Read moreHow Developers Are Improving Customer Experience for Buyers
From online sales portals and virtual reality tours to industry-leading customer satisfaction scores and transformed com...
Read more

