










About This Property
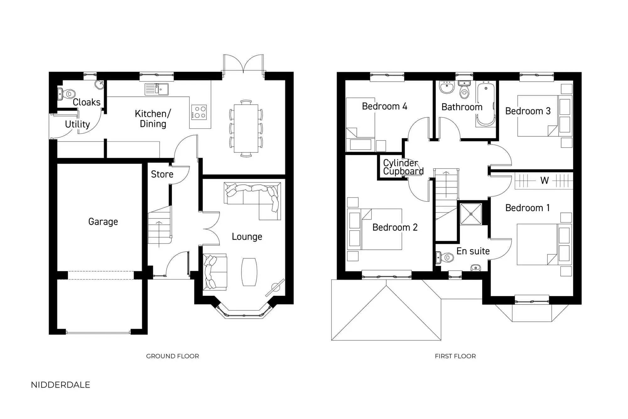
Discover what makes this home specialThe Nidderdale is a spacious detached family home located in the semi-rural village of Epworth, North Lincolnshire. This well-designed property offers four generous bedrooms, including a master with an en-suite, and three bathrooms in total, providing ample space for a growing family or guests. The ground floor boasts a large lounge with a bay window, a modern kitchen/dining area with utility and cloakroom, and an integral garage, blending functionality with comfort. The rear garden faces south-west, ensuring good natural light and pleasant outdoor living space throughout the day.
Situated at DN14 7AF, this property benefits from proximity to local amenities such as Epworth Primary School, Epworth Leisure Centre, and a variety of shops and eateries within walking distance. Transport links include nearby train stations at Crowle (approx. 6 miles) and Doncaster (approx. 16 miles), providing connections to major cities. The area is known for its peaceful environment, with parks and countryside nearby, making it ideal for families and commuters alike.
Property Features
This property features a well-thought-out layout with four bedrooms upstairs, including a master with en-suite facilities, and three bathrooms in total. The ground floor offers a spacious lounge with a bay window that enhances natural light, a large kitchen/dining area with adjoining utility and cloakroom, and an integral garage for secure parking and storage. The south-west facing garden enjoys good sunlight, ideal for outdoor activities and relaxation. Modern fittings and practical storage spaces such as the under-stairs store add to the home's appeal.
Local Amenities
The Nidderdale benefits from a strong local community infrastructure. Epworth Primary School and other educational facilities are within easy reach, making it suitable for families. Leisure and cultural amenities such as the Epworth Leisure Centre and library provide recreational options. The village centre offers a range of shops, restaurants, and essential services including a medical centre. For wider travel, Crowle train station is approximately 6 miles away, with Doncaster station about 16 miles, connecting residents to larger cities and employment hubs. Nearby parks and countryside add to the quality of life in this peaceful location.
Estimate Calculator
Mortgage Calculator
Purchase Costs
Monthly Costs & Income
Mortgage Calculator
Purchase Costs
Monthly Costs
International Suitability
Analyzing...International Buyer Calculator
Purchase Costs (Non-UK Resident)
Monthly Costs & Income
Key Considerations for International Buyers
Investment Analytics
Key metrics for investors & buyersProperty Value Projection
Based on 4.8% annual growthMonthly Rental Income
Based on 4.8% annual growthFloorplan
Ground Floor

Site Plan
Location
Commute Time Planner
Sun Path & Natural LightAI generated - Estimated
Room-by-Room Light Analysis
Location Scores
Future Developments Nearby
Loading location insights...
Similar Properties
Latest Insights & Guides
Expert advice on buying new build homes, market trends, and property investment
Ground Rent and Service Charges on Leasehold New Builds
Understand the ongoing costs of leasehold new build homes including ground rent changes under the 2022 Act, typical serv...
Read moreFirst-Time Buyer Success Story: From Renting to Owning a New Build Home — A Step-by-Step Journey
Follow one first-time buyer's complete journey from renting to owning a new build home. Real costs, timelines, mistakes,...
Read moreUnderstanding New Build Restrictive Covenants
A comprehensive guide to restrictive covenants on new build estates, covering common restrictions, enforcement, duration...
Read more
/002-bm_centurianvillage_leyand_ext_ellerton_kingsville_3bed_4bed_whitedoors_lowres.jpg)
