









About This Property
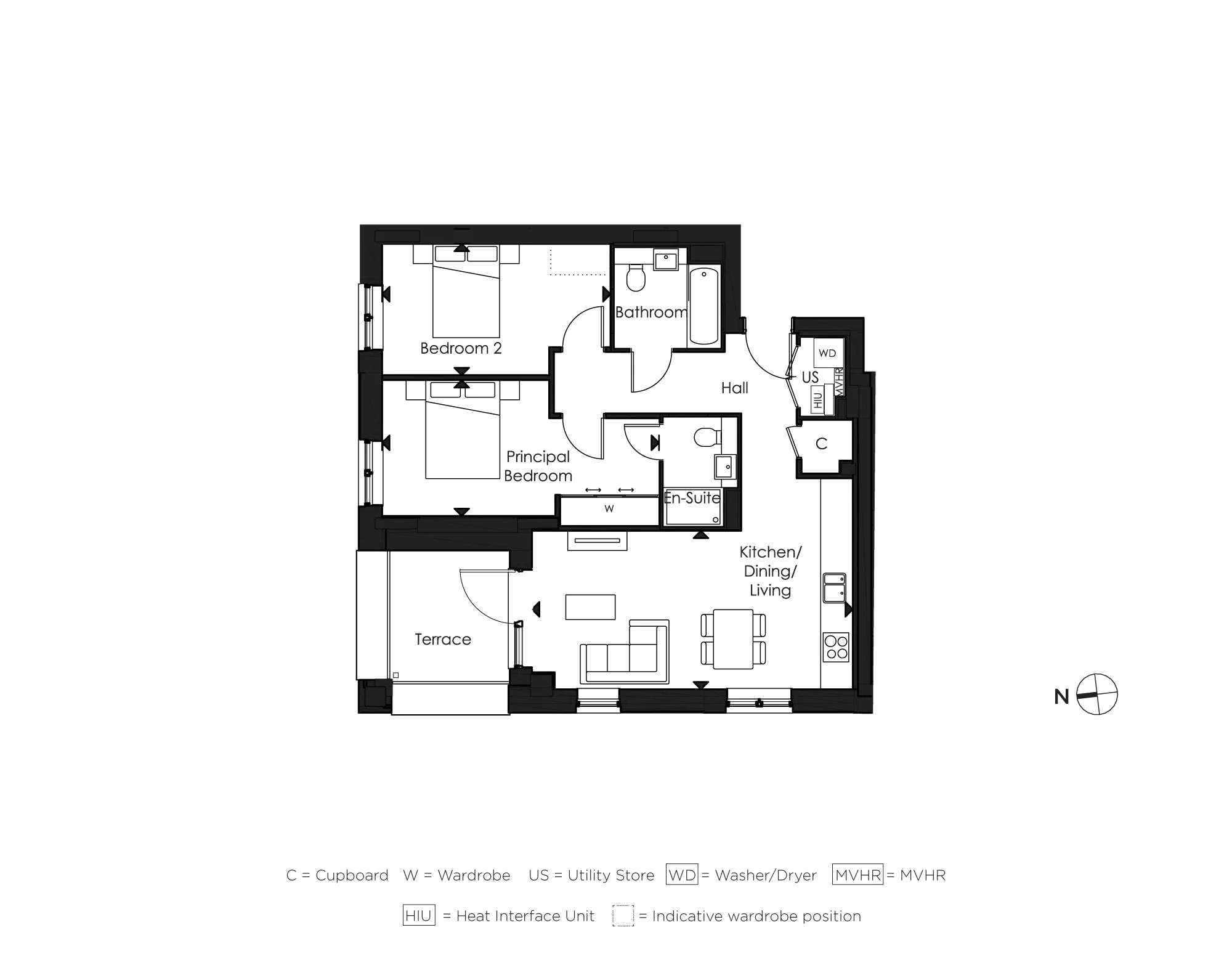
Discover what makes this home specialThe Empire, Apartment 896, is a modern two-bedroom, two-bathroom apartment located in the heart of Cambridge, CB3 1SE. This stylish home offers a spacious open-plan kitchen, dining, and living area that opens onto a private terrace facing south-west, ensuring excellent natural light throughout the afternoon and evening. The principal bedroom benefits from an en-suite bathroom and built-in wardrobes, while the second bedroom and main bathroom provide ample space for family or guests. Situated within a vibrant development close to green spaces and the city centre, this apartment perfectly balances urban convenience with tranquil living.
Residents enjoy proximity to Cambridge’s renowned amenities, including top-rated schools, a variety of shops, cafes, and parks. The location offers excellent transport links with Cambridge Station less than a mile away, providing fast rail connections to London and beyond. With ongoing local development projects aimed at enhancing transport infrastructure and urban expansion, this property represents a promising investment opportunity in a thriving city.
Ideal for professionals, families, and investors alike, The Empire offers contemporary living in one of the UK’s most sought-after cities, combining lifestyle, connectivity, and growth potential.
Property Features
This apartment features a spacious open-plan kitchen, dining, and living area that maximises natural light with its south-west facing terrace. The principal bedroom includes an en-suite bathroom and built-in wardrobes for convenience and comfort. Additional features include a utility store with washer/dryer, modern kitchen appliances, and secure access within a well-maintained development. The property’s layout is designed for practical, stylish urban living.
Local Amenities
Located within walking distance of Cambridge Station, this property benefits from excellent transport links. Nearby amenities include the Cambridge Leisure Park for entertainment, several supermarkets including Tesco, and a range of local shops and eateries along Mill Road. Families will appreciate access to well-regarded schools such as Parkside Community Primary and The Perse School. The proximity to green spaces like Jesus Green offers recreational opportunities, making this location highly desirable for residents seeking a balanced urban lifestyle.
Estimate Calculator
Mortgage Calculator
Purchase Costs
Monthly Costs & Income
Mortgage Calculator
Purchase Costs
Monthly Costs
International Suitability
Attractive Investment OpportunityInternational Buyer Calculator
Purchase Costs (Non-UK Resident)
Monthly Costs & Income
Key Considerations for International Buyers
Investment Analytics
Key metrics for investors & buyersProperty Value Projection
Based on 1.0% annual growthMonthly Rental Income
Based on 3.8% annual growthFloorplan
Ground Floor

Site Plan

Location
Commute Time Planner
Sun Path & Natural LightAI generated - Estimated
Room-by-Room Light Analysis
Location Scores
Future Developments Nearby
Loading location insights...
Similar Properties
Explore More
Latest Insights & Guides
Expert advice on buying new build homes, market trends, and property investment
Pets in New Build Homes: Preparing Your Home and Garden
Everything you need to know about making your new build home safe, comfortable, and pet-friendly for dogs, cats, and oth...
Read moreHow Much Deposit Do You Need for a New Build Home? Sizes, Saving Strategies, and How New Build Deposits Work Differently
Complete UK guide to new build deposits — how much you need by LTV tier, how reservation fees and exchange deposits work...
Read moreChain-Free Buying: The New Build Advantage Explained
Discover why chain-free buying is one of the biggest advantages of new build homes. Compare timelines, understand fall-t...
Read more
