










About This Property
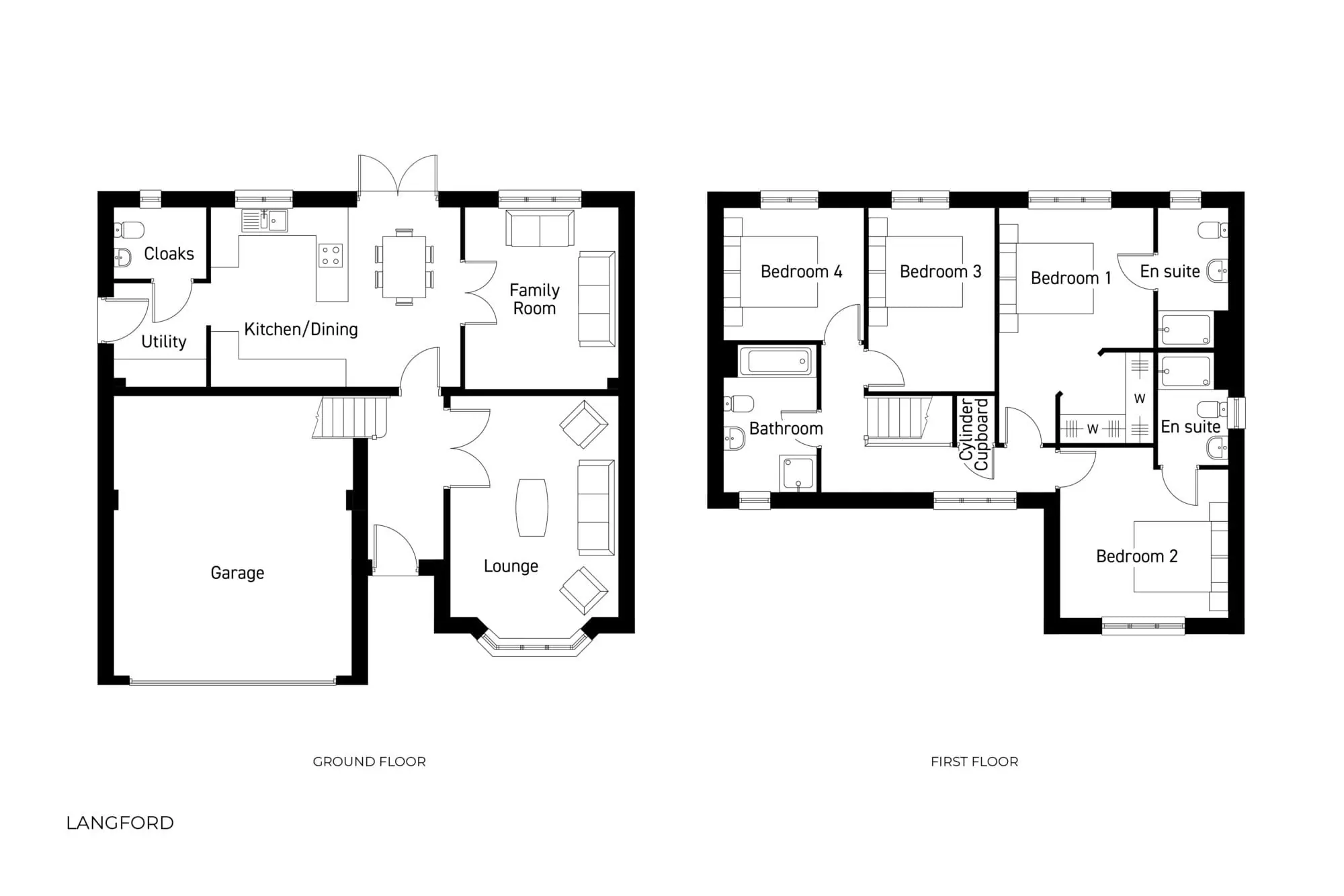
Discover what makes this home specialThe Langford is a spacious detached family home located in the desirable market town of Malton, North Yorkshire. Boasting four well-proportioned bedrooms including two en-suite bathrooms, this property offers generous living space with a lounge, family room, and a modern kitchen/dining area. The inclusion of a utility room, cloakroom, and an integral garage adds to the convenience and functionality of the home. Situated on Plot 69, the property benefits from a south-east facing rear garden, providing pleasant natural light throughout the day.
This home is ideally positioned for families and professionals alike, with excellent transport links to York and Leeds, and access to a range of local amenities including schools, shops, and parks. The area is experiencing positive growth with upcoming regeneration projects in Malton town centre, enhancing both lifestyle and investment potential. The Langford combines traditional charm with modern living, making it a perfect choice for those seeking comfort and connectivity in a thriving community.
Property Features
This detached property offers a versatile layout with four bedrooms, including two en-suites that provide privacy and convenience. The spacious kitchen/dining area opens into a family room, ideal for everyday living and entertaining. Additional features such as a utility room and cloakroom enhance practicality, while the integral garage offers secure parking and storage. The south-east facing garden ensures good sunlight exposure, creating a bright and inviting outdoor space.
Local Amenities
Located in Malton, the property benefits from a variety of local amenities that cater to all ages and lifestyles. Education is well served by Malton Community Primary School and Lady Lumley's School nearby. Residents can enjoy recreational facilities at Malton Leisure Centre and explore the historic Malton Castle Grounds. The town centre offers a selection of shops, markets, and restaurants, providing a vibrant community atmosphere. Transport links are strong with Malton Railway Station just over a mile away, facilitating easy travel to York and beyond.
Estimate Calculator
Mortgage Calculator
Purchase Costs
Monthly Costs & Income
Mortgage Calculator
Purchase Costs
Monthly Costs
International Suitability
Moderate OpportunityInternational Buyer Calculator
Purchase Costs (Non-UK Resident)
Monthly Costs & Income
Key Considerations for International Buyers
Investment Analytics
Key metrics for investors & buyersProperty Value Projection
Based on 4.5% annual growthMonthly Rental Income
Based on 5.0% annual growthFloorplan
Ground Floor

Site Plan
Location
Commute Time Planner
Sun Path & Natural LightAI generated - Estimated
Room-by-Room Light Analysis
Location Scores
Future Developments Nearby
Loading location insights...
Similar Properties
Explore More
Latest Insights & Guides
Expert advice on buying new build homes, market trends, and property investment
New Build Flooring Issues: Common Snagging Problems
Flooring defects are among the most reported snagging issues in new build homes. From squeaky floorboards and uneven sur...
Read moreNew Build Bathroom Design: Tiles, Fixtures, and Spa-Style Ideas
A comprehensive UK guide to designing and upgrading your new build bathroom. Covers developer specifications across budg...
Read moreBuild to Rent Sector Growth and New Build Impact
A comprehensive analysis of the UK's rapidly growing Build to Rent sector — covering the investment pipeline, specificat...
Read more
.jpg)
