
About This Property
Discover what makes this home specialJackwood is a spacious detached family home located in the sought-after Wester Hailes area of Edinburgh, offering a perfect blend of suburban tranquility and city accessibility. With four well-proportioned bedrooms and four bathrooms, including two en-suites, this property is designed for comfortable modern living. The open-plan kitchen/dining/family area provides a versatile space for entertaining and daily life, complemented by a separate lounge for more formal occasions. The inclusion of a garage and laundry room adds practical convenience.
Situated within easy reach of Edinburgh city centre, Jackwood benefits from excellent transport links, including nearby Wester Hailes train station and multiple bus routes. The local area boasts a variety of schools, parks, and shopping facilities, making it ideal for families. Future development plans in the vicinity promise to enhance the community further, adding value and lifestyle benefits for residents.
Property Features
This detached home offers ample living space with four bedrooms, including a principal bedroom with an en-suite bathroom, and a second en-suite off another bedroom. The open-plan kitchen/dining/family area is perfect for modern family life, while the separate lounge provides a comfortable retreat. Practical features include a garage and laundry room, enhancing day-to-day convenience. The property’s garden space offers outdoor enjoyment and potential for landscaping or entertaining.
Local Amenities
Jackwood is located in a well-established residential neighbourhood with access to quality educational facilities such as Wester Hailes Primary School and Clovenstone Primary School, as well as Wester Hailes Education Centre for further learning. The nearby Wester Hailes Shopping Centre provides a range of retail options and essential services. For leisure, residents can enjoy Saughton Park, a large green space with recreational amenities. The area also benefits from local healthcare services and a variety of cafes and restaurants, supporting a comfortable and convenient lifestyle.
Estimate Calculator
Mortgage Calculator
Purchase Costs
Monthly Costs & Income
Mortgage Calculator
Purchase Costs
Monthly Costs
International Suitability
Moderate OpportunityInternational Buyer Calculator
Purchase Costs (Non-UK Resident)
Monthly Costs & Income
Key Considerations for International Buyers
Investment Analytics
Key metrics for investors & buyersProperty Value Projection
Based on 2.9% annual growthMonthly Rental Income
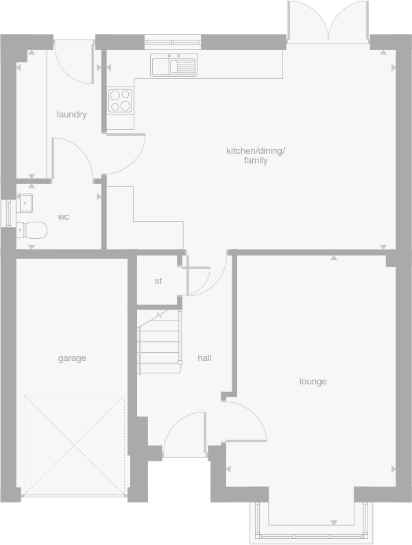
Based on 2.8% annual growthFloorplans
Ground Floor

Ground Floor
First FloorLocation
Commute Time Planner
Location Scores
Future Developments Nearby
Loading location insights...
Similar Properties
Explore More
Latest Insights & Guides
Expert advice on buying new build homes, market trends, and property investment
New Build Mortgage Lenders Compared: Which Banks and Building Societies Lend on New Builds in 2026?
Not all lenders offer new build mortgages. Compare which UK banks and building societies lend on new builds, their LTV l...
Read moreWhat to Check Before You Reserve a New Build
A comprehensive checklist of everything to verify before paying a reservation fee on a new build home in the UK. Covers ...
Read moreSeasonal Maintenance Calendar for New Build Owners
A month-by-month maintenance calendar for new build homeowners covering heating, gutters, boilers, windows, gardens and ...
Read more

