








About This Property
Discover what makes this home specialThe Mews House, Number 62, is a contemporary and stylish residence situated in the highly sought-after CB3 postcode of Cambridge. This well-designed home offers a spacious open-plan kitchen, dining, and family area, complemented by a separate study and utility space on the ground floor. Upstairs, the property features a principal bedroom with an en-suite bathroom and a well-proportioned second bedroom, alongside a generous living room perfect for relaxation. The rear garden faces south-west, providing ample natural light and outdoor enjoyment throughout the summer months.
Located just over a mile from Cambridge Station, this property benefits from excellent connectivity to London and other major cities, making it ideal for commuters. The local area is vibrant with a range of amenities including reputable schools, parks, shops, and restaurants within easy walking distance. With ongoing regeneration projects and transport improvements nearby, this home represents a sound investment in a thriving urban environment.
Property Features
This property boasts a modern open-plan layout on the ground floor, ideal for family living and entertaining. The inclusion of a dedicated study and utility room enhances functionality, while upstairs accommodation includes a spacious principal bedroom with en-suite facilities and a separate living room, providing versatile space for relaxation or work-from-home needs. The south-west facing garden ensures good natural light and outdoor space, complemented by off-street parking for convenience.
Local Amenities
Situated within the CB3 area of Cambridge, the property enjoys proximity to excellent educational institutions such as Parkside Community College and the University of Cambridge. Local shopping options include the Arbury Road retail parade and Tesco Express for daily essentials. Outdoor enthusiasts will appreciate nearby Jesus Green Park, offering green space and recreational facilities. A variety of dining options, including The Mill Restaurant, provide diverse culinary experiences, making this location both convenient and vibrant.
Estimate Calculator
Mortgage Calculator
Purchase Costs
Monthly Costs & Income
Mortgage Calculator
Purchase Costs
Monthly Costs
International Suitability
Attractive InvestmentInternational Buyer Calculator
Purchase Costs (Non-UK Resident)
Monthly Costs & Income
Key Considerations for International Buyers
Investment Analytics
Key metrics for investors & buyersProperty Value Projection
Based on 1.0% annual growthMonthly Rental Income
Based on 3.8% annual growthFloorplans
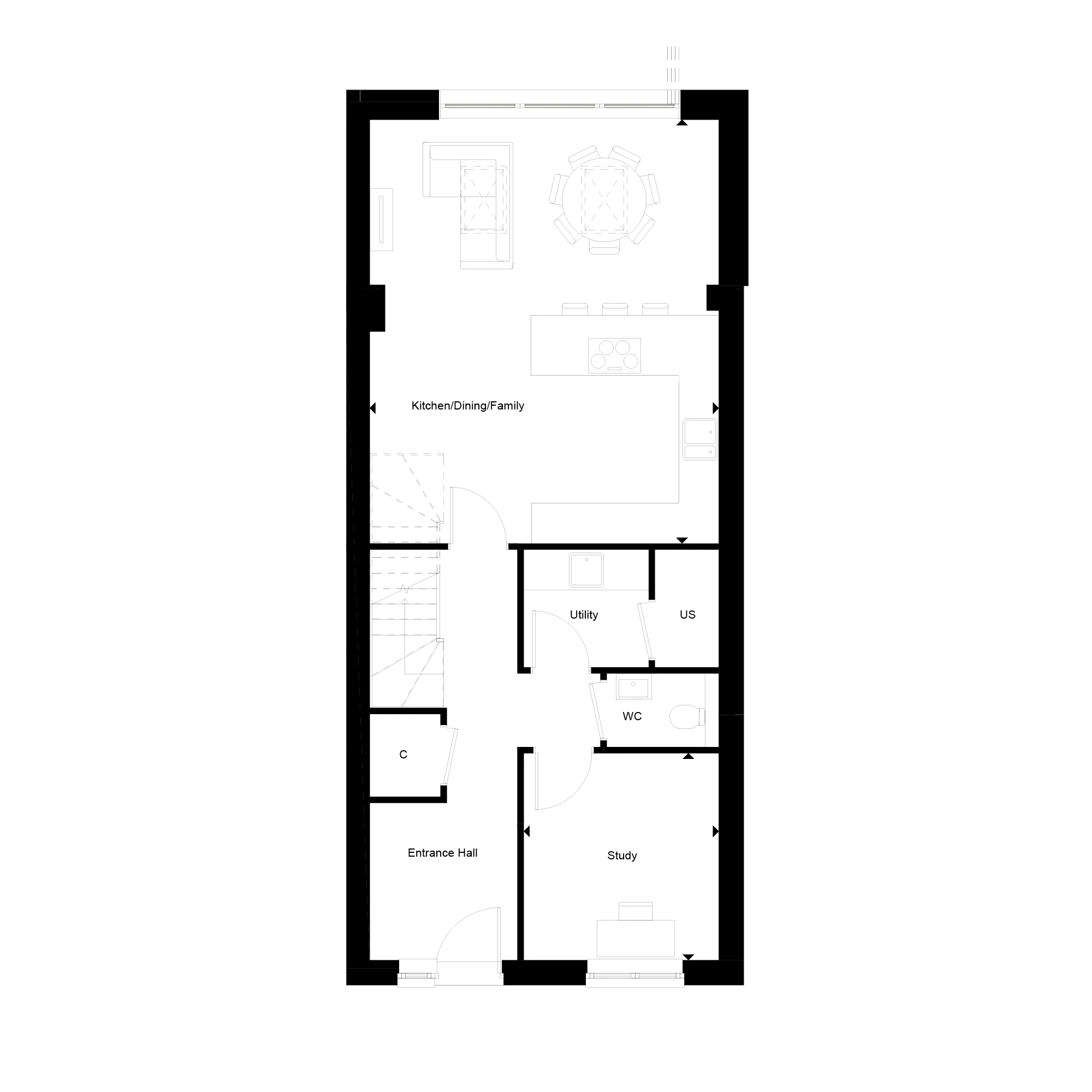
Ground Floor

Ground Floor
First Floor
Second FloorSite Plan

Location
Commute Time Planner
Sun Path & Natural LightAI generated - Estimated
Room-by-Room Light Analysis
Location Scores
Future Developments Nearby
Loading location insights...
Similar Properties
Explore More
Latest Insights & Guides
Expert advice on buying new build homes, market trends, and property investment
Flooring Options for New Build Homes: LVT, Carpet, Tile, and Engineered Wood
A comprehensive UK guide to choosing flooring for your new build home, covering luxury vinyl tile, carpet, porcelain and...
Read moreNew Build Quality Standards: What to Expect in 2026
A complete guide to the building regulations, quality codes and energy standards shaping new build homes in 2025 and 202...
Read moreNew Build Property Investment for Overseas Buyers
A comprehensive guide for international investors looking to purchase new build property in the UK. Covering non-residen...
Read more

