








About This Property
Discover what makes this home specialThe Mews House, Number 60, is a beautifully designed two-bedroom, two-bathroom home located in the heart of Cambridge, CB3 1SE. This modern property offers a perfect blend of contemporary living and convenient access to one of the UK's most vibrant academic and tech hubs. The spacious open-plan kitchen, dining, and family area on the ground floor is ideal for both entertaining and everyday living, complemented by a dedicated study and utility space. Upstairs, the principal bedroom boasts an en-suite bathroom and ample storage, alongside a generous living room that adds flexibility to the home's layout.
Situated just over a mile from Cambridge Station, this property benefits from excellent transport links, making it ideal for commuters and professionals. The rear garden faces south-east, providing pleasant morning and early afternoon sunlight, perfect for outdoor relaxation. Local amenities including schools, parks, shops, and restaurants are all within easy walking distance, enhancing the lifestyle appeal of this home. With ongoing area developments, the property promises strong future growth potential.
Property Features
This property features a thoughtfully designed open-plan kitchen, dining, and family space that maximizes natural light and functionality. The principal bedroom includes a private en-suite bathroom and built-in wardrobes, while the additional living room upstairs offers versatile space for relaxation or entertaining. A dedicated study and utility room provide practical work-from-home and household management areas. The south-east facing garden receives good morning and early afternoon sun, enhancing outdoor enjoyment. Modern fixtures and fittings throughout ensure a stylish and comfortable living environment.
Local Amenities
Located in a thriving and well-connected area of Cambridge, this property benefits from proximity to excellent local amenities. Families will appreciate access to highly regarded schools such as Parkside Primary and The Leys School. Shopping needs are well catered for with nearby Waitrose and the diverse independent shops along Mill Road. Outdoor enthusiasts can enjoy the nearby Jesus Green Park, offering green space and recreational facilities. Dining and leisure options abound with popular local restaurants and the Cambridge Leisure Park within easy reach, providing a balanced urban lifestyle.
Estimate Calculator
Mortgage Calculator
Purchase Costs
Monthly Costs & Income
Mortgage Calculator
Purchase Costs
Monthly Costs
International Suitability
Good OpportunityInternational Buyer Calculator
Purchase Costs (Non-UK Resident)
Monthly Costs & Income
Key Considerations for International Buyers
Investment Analytics
Key metrics for investors & buyersProperty Value Projection
Based on 1.0% annual growthMonthly Rental Income
Based on 3.8% annual growthFloorplans
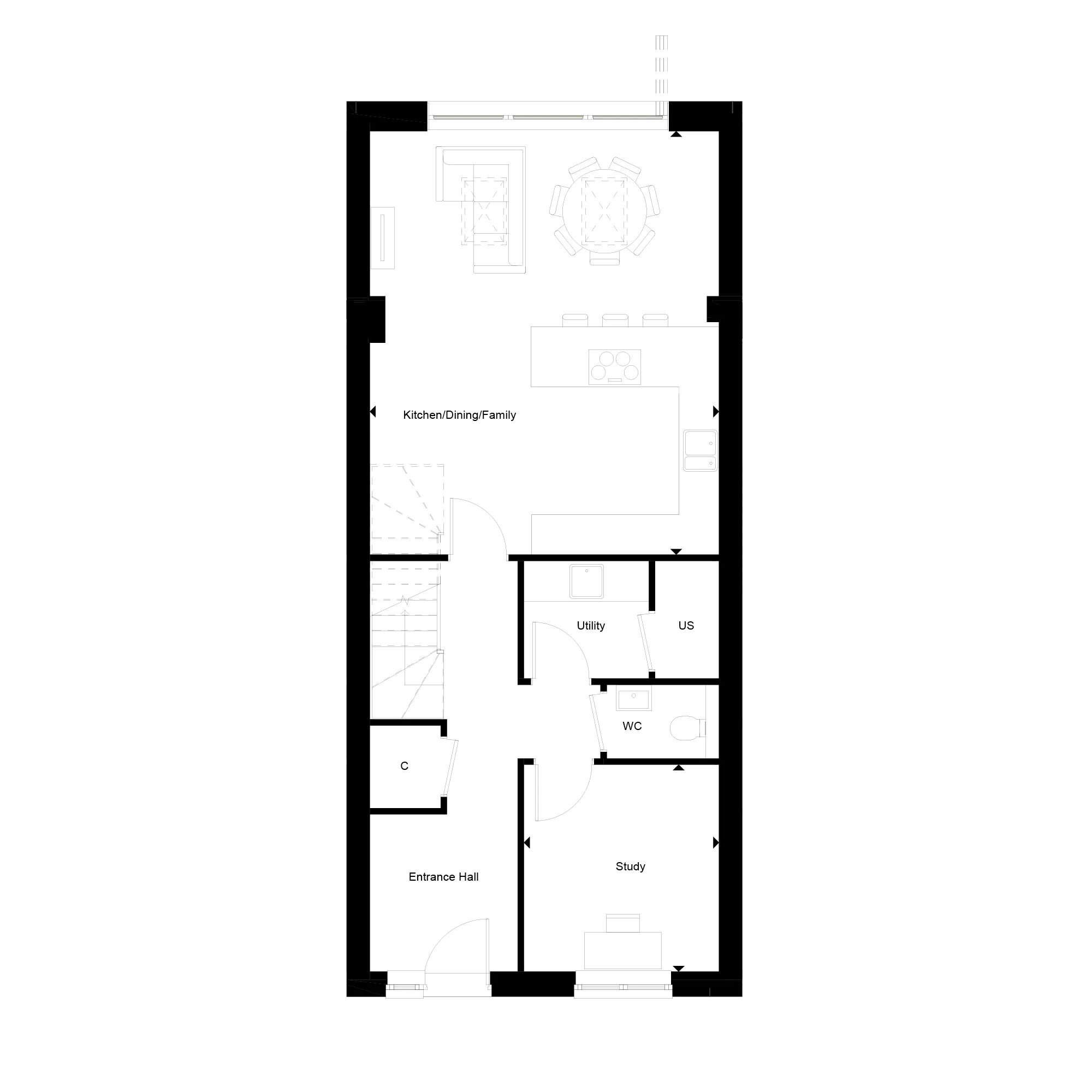
Ground Floor

Ground Floor
First Floor
Second FloorSite Plan

Location
Commute Time Planner
Sun Path & Natural LightAI generated - Estimated
Room-by-Room Light Analysis
Location Scores
Future Developments Nearby
Loading location insights...
Similar Properties
Explore More
Latest Insights & Guides
Expert advice on buying new build homes, market trends, and property investment
Leasehold vs Freehold New Builds: Legal Differences Explained
Understand the legal differences between leasehold and freehold new build homes in England and Wales, including ground r...
Read moreHow Shared Ownership Costs Work on New Build Homes
Understand the full costs of shared ownership on a new build home, including combined rent and mortgage payments, servic...
Read moreSnagging Disputes and Your Legal Rights: How to Escalate, Complain, and Get Defects Fixed When the Developer Won't Cooperate
What to do when your new build developer refuses to fix defects. The complete guide to escalation, formal complaints, NH...
Read more

