














About This Property
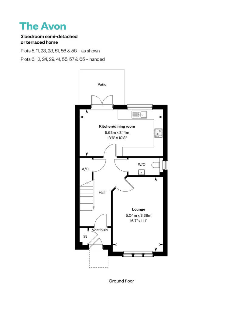
Discover what makes this home specialThe Avon is a charming 3-bedroom terraced home located in the desirable Oxford OX2 8PQ area. Offering a well-thought-out layout, this property features a spacious lounge, a modern kitchen/dining room with patio access, and a practical cloakroom on the ground floor. Upstairs, the master bedroom benefits from an en-suite, complemented by two additional bedrooms and a family bathroom, making it ideal for families or professionals seeking comfortable living space close to Oxford city centre.
Situated in a thriving neighbourhood, this home combines convenience with a peaceful residential setting. The south-facing rear garden enjoys ample sunlight, perfect for outdoor relaxation or entertaining. The property's proximity to Oxford Station and excellent local amenities further enhances its appeal, making it a smart investment or a lovely family residence.
Property Features
This property boasts a south-facing garden that captures generous sunlight throughout the day, enhancing outdoor living. The en-suite master bedroom adds privacy and convenience, while the modern kitchen/dining area with patio doors creates a bright, airy space for family meals and entertaining. Additional features include a downstairs cloakroom, built-in wardrobes in bedrooms, and a spacious lounge that benefits from natural light.
Local Amenities
Located within easy reach of Oxford Station, the property offers excellent transport links to London and beyond. Nearby educational institutions such as Oxford Brookes University and well-regarded primary and secondary schools make this area popular with families and students alike. Residents also benefit from local green spaces like Cutteslowe Park, large supermarkets including Tesco, and convenient access to healthcare services and public transport options.
Estimate Calculator
Mortgage Calculator
Purchase Costs
Monthly Costs & Income
Mortgage Calculator
Purchase Costs
Monthly Costs
International Suitability
Moderate OpportunityInternational Buyer Calculator
Purchase Costs (Non-UK Resident)
Monthly Costs & Income
Key Considerations for International Buyers
Investment Analytics
Key metrics for investors & buyersProperty Value Projection
Based on 1.6% annual growthMonthly Rental Income
Based on 3.5% annual growthFloorplan
Floorplans
Ground Floor

Ground Floor
First FloorSite Plan
Location
Commute Time Planner
Sun Path & Natural LightAI generated - Estimated
Room-by-Room Light Analysis
Location Scores
Future Developments Nearby
Loading location insights...
Similar Properties
Explore More
Latest Insights & Guides
Expert advice on buying new build homes, market trends, and property investment
Emotional Roadmap: What First-Time Buyers Can Expect at Each Stage
A warm, honest guide to the emotional rollercoaster of buying your first new build home in the UK. From the initial drea...
Read moreService Charges on New Build Homes Explained: Houses vs Flats, What You Pay, and How to Challenge Unfair Charges
Complete UK guide to new build service charges — what they cover for houses vs flats, typical costs by property type, es...
Read moreGovernment Schemes for Buying a New Build Home in the UK (2026 Guide)
Every government scheme currently available to help you buy a new build home in the UK. Covers First Homes, Shared Owner...
Read more

