











About This Property
Discover what makes this home specialThe Bargower is a spacious 4-bedroom detached family home located in the desirable area of Aberdeen, Oxford. This property offers a modern open-plan kitchen, family, and dining room with access to a private patio, perfect for entertaining and family living. Upstairs, the home features four well-proportioned bedrooms, including a master bedroom with an en-suite bathroom, alongside a family bathroom and an additional WC on the ground floor. The integrated garage and ample storage options add to the practicality of this home.
Situated in a sought-after residential area with excellent transport links to Oxford city centre and London, this property combines convenience with a tranquil suburban lifestyle. The rear garden faces south-east, ensuring pleasant morning and early afternoon sunlight, ideal for gardening enthusiasts and outdoor relaxation. This home is well-suited to families looking for a blend of comfort, style, and accessibility.
Property Features
The property boasts four bedrooms including a master with en-suite, providing comfortable living spaces for families or guests. The open-plan kitchen, family, and dining area creates a versatile and sociable hub, complemented by a patio for outdoor dining. The integrated garage offers secure parking and additional storage, while the ground floor WC adds convenience. Built with modern finishes and thoughtful design, this home balances style with functionality.
Local Amenities
Located in a well-established neighbourhood, the property benefits from proximity to top-rated schools such as Oxford High School and Oxford Brookes University, making it ideal for families and students alike. Oxford Station provides excellent rail connections to London and other major cities, enhancing commute options. Nearby amenities include the John Radcliffe Hospital, Tesco Superstore for everyday shopping, and leisure facilities like Cutteslowe Park and Oxford Ice Rink, offering a balanced lifestyle with access to education, healthcare, retail, and recreation.
Estimate Calculator
Mortgage Calculator
Purchase Costs
Monthly Costs & Income
Mortgage Calculator
Purchase Costs
Monthly Costs
International Suitability
Good OpportunityInternational Buyer Calculator
Purchase Costs (Non-UK Resident)
Monthly Costs & Income
Key Considerations for International Buyers
Investment Analytics
Key metrics for investors & buyersProperty Value Projection
Based on 1.6% annual growthMonthly Rental Income
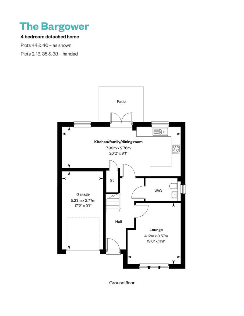
Based on 3.5% annual growthFloorplan
Floorplans
Ground Floor

Ground Floor
First FloorSite Plan
Location
Commute Time Planner
Sun Path & Natural LightAI generated - Estimated
Room-by-Room Light Analysis
Location Scores
Future Developments Nearby
Loading location insights...
Similar Properties
Explore More
Latest Insights & Guides
Expert advice on buying new build homes, market trends, and property investment
End-of-Quarter Deals on New Build Homes: How Developer Sales Targets Create Buying Opportunities and How to Negotiate the Best Price
Learn how developer quarterly sales targets create buying opportunities for new build homes. Discover negotiation script...
Read moreNew Build Homes in Birmingham: Regeneration Zones, Prices, and Where to Buy in 2026
The complete guide to buying a new build home in Birmingham. Regeneration zone analysis covering HS2 impact areas, Digbe...
Read moreHow Long Does It Take to Buy a New Build Home? Timelines for Every Stage, What Causes Delays, Off-Plan vs Ready-to-Move Schedules, and How to Speed Up the Slowest Parts
Detailed timelines for buying a new build home in the UK. Covers how long every stage takes from first visit to moving d...
Read more

