










About This Property
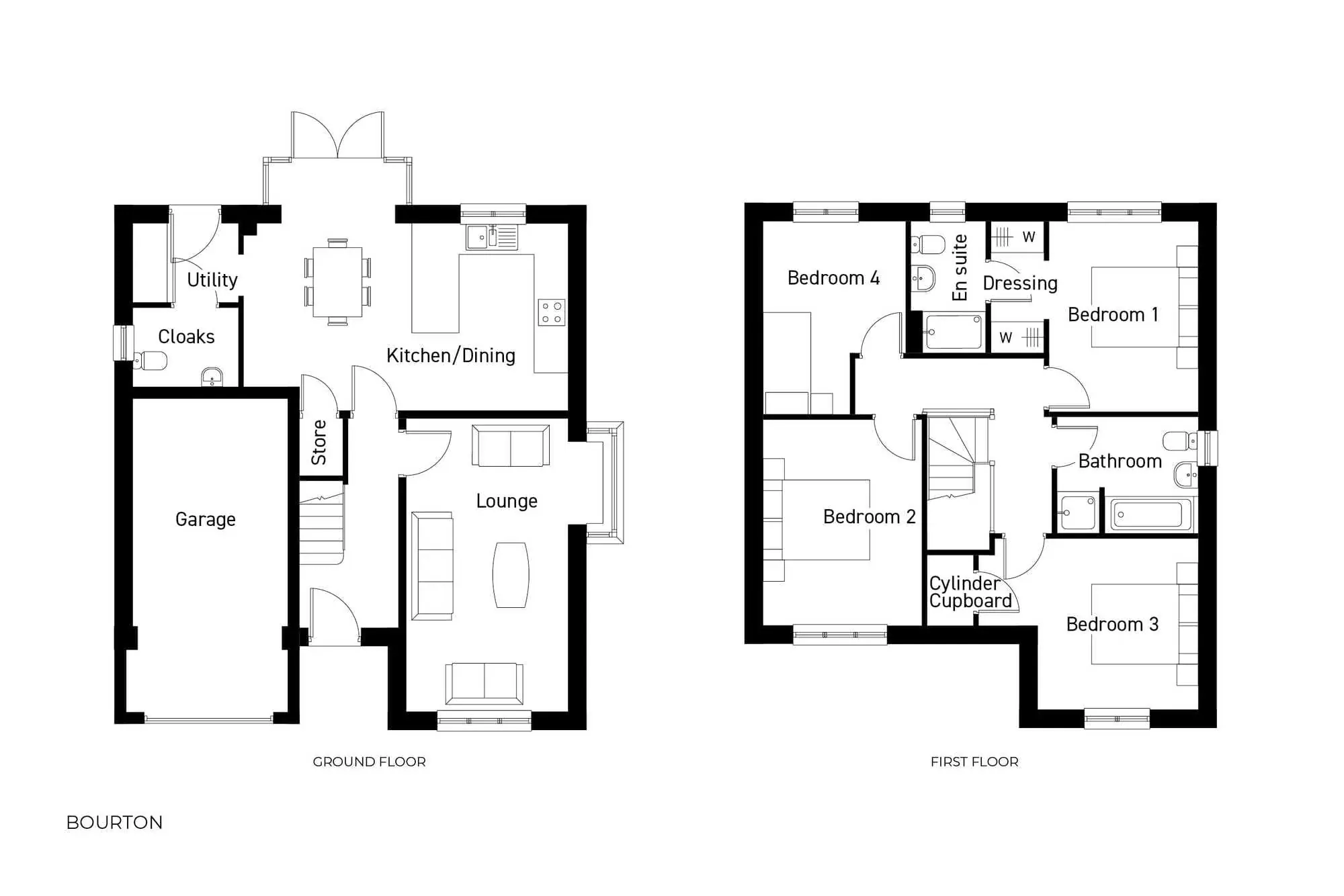
Discover what makes this home specialThe Bourton is a spacious detached family home located in a peaceful residential area near DN11 8AB, offering a blend of modern comfort and practical living. Boasting four well-sized bedrooms and three bathrooms, including an en-suite and a cloakroom, this property is ideal for families seeking ample space and privacy. The ground floor features a generous lounge, a bright kitchen/dining area with direct access to the rear garden, and a useful utility room, all designed to maximize natural light and functionality.
Situated within easy reach of Doncaster, this home benefits from good road connectivity while maintaining a quiet suburban feel. The south-east facing garden enjoys pleasant morning and afternoon sunlight, perfect for outdoor relaxation and entertaining. With a garage and additional storage space, The Bourton combines convenience with contemporary living standards.
Property Features
This detached house offers four bedrooms upstairs including a master with en-suite and dressing area, alongside a family bathroom. The ground floor is designed for comfortable living with a spacious lounge, a modern kitchen/dining room opening onto the garden, and a utility room with cloakroom. Additional features include a garage and internal storage, enhancing practicality for family life. The south-east facing garden provides good natural light throughout the day.
Local Amenities
The property is located close to well-regarded schools such as St Peter's Primary and Rossington Secondary Academy, making it suitable for families. Local shopping needs are met by Tesco Superstore and village shops in Rossington. Outdoor leisure options include Rossington Park, offering green space for recreation. The area also provides convenient access to healthcare facilities like Doncaster Royal Infirmary and a selection of pubs and restaurants, including The Black Bull, contributing to a balanced suburban lifestyle.
Estimate Calculator
Mortgage Calculator
Purchase Costs
Monthly Costs & Income
Mortgage Calculator
Purchase Costs
Monthly Costs
International Suitability
Moderate OpportunityInternational Buyer Calculator
Purchase Costs (Non-UK Resident)
Monthly Costs & Income
Key Considerations for International Buyers
Investment Analytics
Key metrics for investors & buyersProperty Value Projection
Based on 4.8% annual growthMonthly Rental Income
Based on 4.8% annual growthFloorplan
Ground Floor

Site Plan
Location
Commute Time Planner
Sun Path & Natural LightAI generated - Estimated
Room-by-Room Light Analysis
Location Scores
Future Developments Nearby
Loading location insights...
Similar Properties
Explore More
Latest Insights & Guides
Expert advice on buying new build homes, market trends, and property investment
After You Reserve a New Build: The Critical 28 Days That Make or Break Your Purchase
You've paid the reservation fee and secured your plot. Now the clock is ticking. Here's exactly what happens in the 28-d...
Read moreShared Ownership vs Buying Outright: Which Suits First-Time Buyers?
Compare shared ownership and buying outright for first-time buyers of new build homes. Covers eligibility, monthly costs...
Read moreThe 15 Costliest Mistakes First-Time Buyers Make on New Builds (and What Each One Actually Costs You)
First-time buyers lose thousands on new builds through avoidable errors. We break down the 15 most expensive mistakes — ...
Read more/003-bm_centurianvillage_leyand_ext_alderney_4bed_whitedoors_lowres.jpg)

