











About This Property
Discover what makes this home specialThe Olive at Plot 115 is a spacious detached four-bedroom family home located in the sought-after CB3 1SE area of Cambridge. This property offers a modern open-plan kitchen, dining, and living area designed for both comfort and entertaining. Upstairs, three well-proportioned bedrooms and a study provide ample space for family life and working from home. The rear garden faces south-east, allowing for pleasant morning and early afternoon sunlight, ideal for outdoor relaxation.
Situated just under two miles from Cambridge Station, the property benefits from excellent transport links to London and the wider region. Local amenities including schools, parks, and shops are within easy reach, making it an ideal choice for families and professionals alike. With ongoing developments in the Cambridge area, including transport infrastructure and commercial expansions, this home offers both immediate comfort and promising future growth potential.
Property Features
This detached home features a versatile open-plan ground floor combining kitchen, dining, and living spaces, perfect for modern lifestyles. Upstairs includes four bedrooms and a dedicated study, supporting both family and remote work needs. Additional conveniences include a utility store and a ground floor cloakroom. The property is finished with double glazing and contemporary fittings throughout, ensuring energy efficiency and comfort.
Local Amenities
Located within a well-established residential area of Cambridge, the property enjoys proximity to excellent educational institutions such as St. Matthew's Primary and Coleridge Community College. Shopping needs are met by nearby Tesco Superstore and local shops. For leisure, Cherry Hinton Hall Park offers green space and recreational facilities, while The Mill Pub provides a popular social venue. The nearby Cambridge Science Park supports the area's strong employment base in technology and research sectors.
Estimate Calculator
Mortgage Calculator
Purchase Costs
Monthly Costs & Income
Mortgage Calculator
Purchase Costs
Monthly Costs
International Suitability
Good OpportunityInternational Buyer Calculator
Purchase Costs (Non-UK Resident)
Monthly Costs & Income
Key Considerations for International Buyers
Investment Analytics
Key metrics for investors & buyersProperty Value Projection
Based on 1.0% annual growthMonthly Rental Income
Based on 3.8% annual growthFloorplans
Ground Floor

Ground Floor
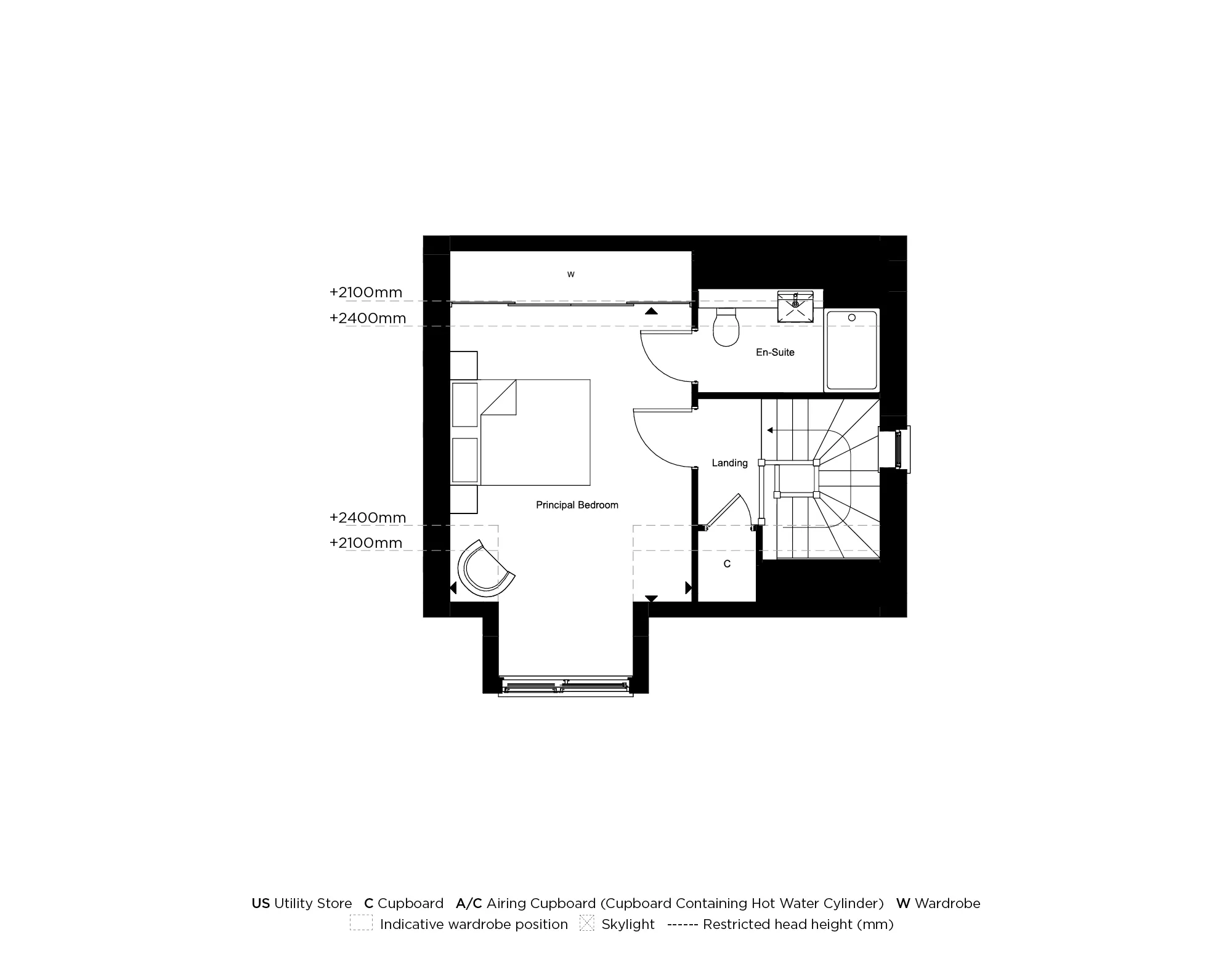
First Floor
Second FloorSite Plan

Location
Commute Time Planner
Sun Path & Natural LightAI generated - Estimated
Room-by-Room Light Analysis
Location Scores
Future Developments Nearby
Loading location insights...
Similar Properties
Latest Insights & Guides
Expert advice on buying new build homes, market trends, and property investment
New Build Homes in Wales: Regional Guide
Discover new build homes across Wales, from Cardiff and Swansea to Newport and the Valleys. Our guide covers Help to Buy...
Read moreNew Build Lighting Design: A Room-by-Room Guide
A comprehensive UK guide to lighting your new build home, covering what developers provide as standard, the three layers...
Read moreFirst Year in Your New Build Home: What to Expect
Your complete guide to the first 12 months in a new build home, covering snagging, settling in, warranties, maintenance ...
Read more

