










About This Property
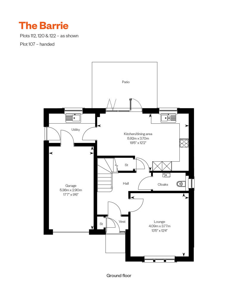
Discover what makes this home specialThe Barrie is a spacious and thoughtfully designed detached family home located in the desirable West Lothian area of Oxford. Boasting four well-proportioned bedrooms and three bathrooms, including a master en-suite, this property offers ample space for growing families or those who appreciate extra room for guests and work-from-home setups. The ground floor features a large kitchen/dining area with direct access to a private south-west facing garden, perfect for entertaining or relaxing in the sun. The separate lounge provides a cozy retreat, while the utility room and integral garage add practical convenience.
Situated within easy reach of Oxford city centre, this home benefits from excellent transport links, including proximity to Oxford Station, providing direct trains to London Paddington in under an hour. The local area offers a range of amenities, including well-regarded schools, parks, and shopping facilities, making it ideal for families and professionals alike. The Barrie combines modern living with a peaceful setting, making it a compelling choice for buyers seeking quality and comfort.
Property Features
This property features a south-west facing garden that enjoys generous afternoon and evening sunlight, enhancing outdoor living. The integral garage and utility room provide excellent storage and practical space for everyday needs. The en-suite to the master bedroom and additional bathrooms ensure convenience and privacy for all occupants. The spacious kitchen/dining area is designed for modern family life and entertaining, while the separate lounge offers a comfortable space to unwind.
Local Amenities
Located just a short drive from Oxford city centre, the property benefits from access to a wide range of amenities including excellent schools such as West Oxford Primary and St. Gregory the Great Catholic School. The nearby Cutteslowe Park offers green space for recreation and family activities. Oxford Station provides frequent train services to London and other major cities, complemented by local bus routes that connect the area well. Shopping needs are easily met with Tesco Superstore and various local shops close by, making this a convenient and well-serviced location.
Estimate Calculator
Mortgage Calculator
Purchase Costs
Monthly Costs & Income
Mortgage Calculator
Purchase Costs
Monthly Costs
International Suitability
Good OpportunityInternational Buyer Calculator
Purchase Costs (Non-UK Resident)
Monthly Costs & Income
Key Considerations for International Buyers
Investment Analytics
Key metrics for investors & buyersProperty Value Projection
Based on 1.6% annual growthMonthly Rental Income
Based on 3.5% annual growthFloorplans
Ground Floor

Ground Floor
First FloorSite Plan
Location
Commute Time Planner
Sun Path & Natural LightAI generated - Estimated
Room-by-Room Light Analysis
Location Scores
Future Developments Nearby
Loading location insights...
Similar Properties
Explore More
Latest Insights & Guides
Expert advice on buying new build homes, market trends, and property investment
New Build Property Portfolio Building: A Beginner's Guide
Learn how to build a profitable new build property portfolio from scratch. Covers financing strategies, growth projectio...
Read moreNew Build Bathroom Design: Tiles, Fixtures, and Spa-Style Ideas
A comprehensive UK guide to designing and upgrading your new build bathroom. Covers developer specifications across budg...
Read moreOffset Mortgages for New Build Homes Explained
A comprehensive UK guide to offset mortgages for new build homes, explaining how offset works, savings-linked structures...
Read more
/002-bm_centurianvillage_leyand_ext_ellerton_kingsville_3bed_4bed_whitedoors_lowres.jpg)
