
About This Property
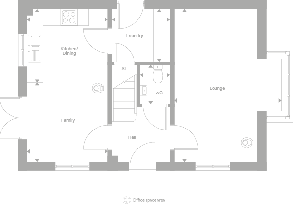
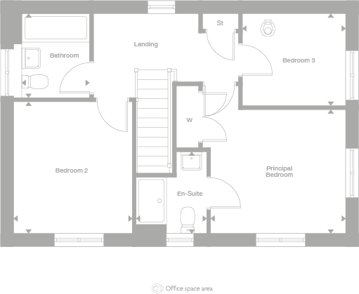
Discover what makes this home specialThis detached family home, located in the desirable Kenilworth area (postcode CV8 2DF), offers a spacious and practical layout ideal for modern living. The property features three well-proportioned bedrooms, including a principal bedroom with an en-suite bathroom, alongside a family bathroom and a convenient ground floor WC. The ground floor boasts a large lounge and an open-plan kitchen/dining/family area, perfect for entertaining and everyday family life.
Situated on a good-sized plot, this home benefits from a laundry room and ample storage space, enhancing its functionality. Its location provides a peaceful residential setting while maintaining easy access to local amenities, schools, and transport links, making it an excellent choice for families and professionals alike.
Property Features
The property’s design focuses on comfortable family living with three bedrooms upstairs, including a master with en-suite facilities, ensuring privacy and convenience. The open-plan kitchen, dining, and family space create a versatile environment for socialising and relaxing. Additional features such as a separate lounge, laundry room, and ground floor WC add to the overall practicality. The garden and off-street parking complete this well-rounded family home.
Local Amenities
The property benefits from proximity to well-regarded schools such as Kenilworth School and St John's Primary, making it suitable for families with children. Local amenities include Tesco Express for daily shopping needs and a variety of pubs and restaurants offering diverse dining options. Outdoor enthusiasts will appreciate nearby Kenilworth Castle Park, providing green space for recreation. The area also features good community facilities like Kenilworth Library, supporting a vibrant local lifestyle.
Estimate Calculator
Mortgage Calculator
Purchase Costs
Monthly Costs & Income
Mortgage Calculator
Purchase Costs
Monthly Costs
International Suitability
Moderate OpportunityInternational Buyer Calculator
Purchase Costs (Non-UK Resident)
Monthly Costs & Income
Key Considerations for International Buyers
Investment Analytics
Key metrics for investors & buyersProperty Value Projection
Based on 0.4% annual growthMonthly Rental Income
Based on 4.5% annual growthFloorplans
Ground Floor

Ground Floor
First FloorLocation
Commute Time Planner
Location Scores
Future Developments Nearby
Loading location insights...
Similar Properties
Explore More
Latest Insights & Guides
Expert advice on buying new build homes, market trends, and property investment
Moving Tips for Your New Build Home: The Complete UK Guide
The complete UK guide to moving into a new build home. Covers snagging inspections, developer handovers, packing timelin...
Read moreEmotional Roadmap: What First-Time Buyers Can Expect at Each Stage
A warm, honest guide to the emotional rollercoaster of buying your first new build home in the UK. From the initial drea...
Read moreHow Long Do Developers Take to Fix Snagging Issues?
From minor cosmetic fixes to major structural defects, find out how long UK developers typically take to resolve snaggin...
Read more
/002-bm_centurianvillage_leyand_ext_ellerton_kingsville_3bed_4bed_whitedoors_lowres.jpg)
